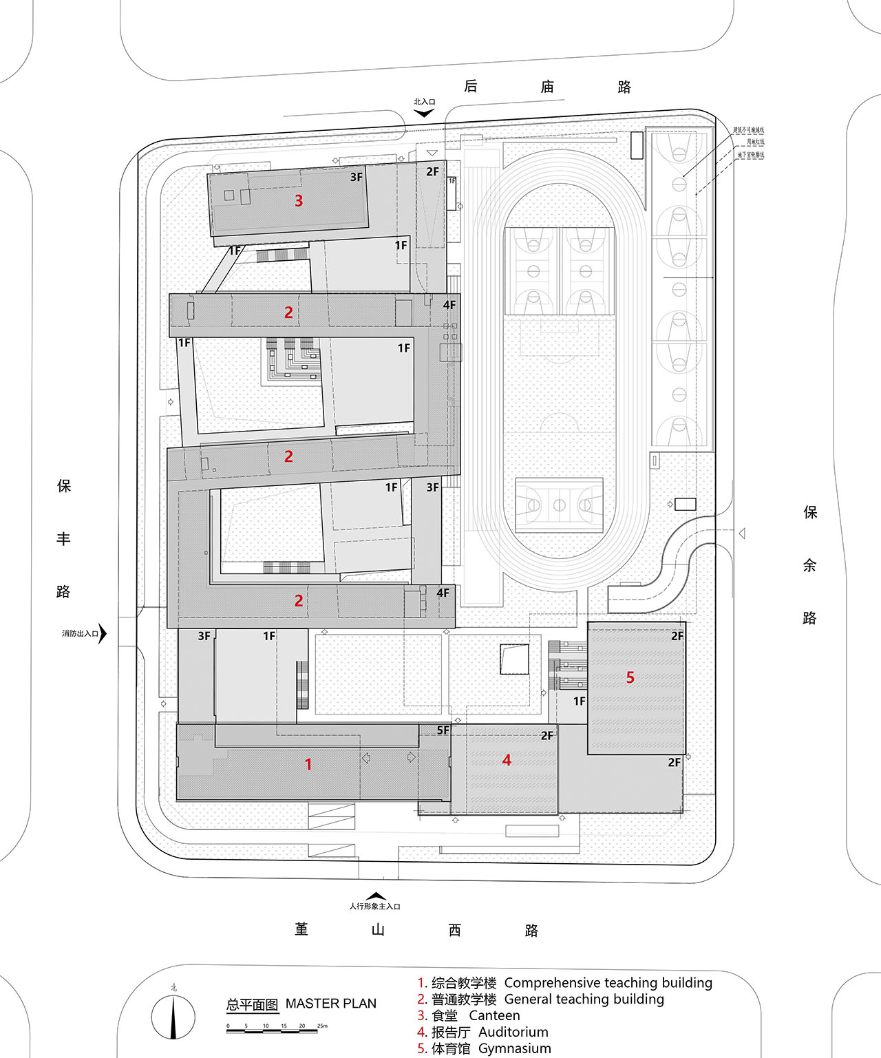
项目启动于2021年,源于区域学位紧张与未来人口增长的明确预期。我们面临的核心挑战是:如何在仅满足浙江省36班完全小学二类标准的规划用地上,建设一所42班规模的学校,并使之符合现代教育理念。
02 总体规划:高效组织与全天候联通
为应对扩容,我们将原定300米田径场压缩为250米,为建筑布局释放更多空间。校园建筑被清晰划分为三个区域:南侧横向展开的综合教学楼、报告厅与体艺馆,各个体块的咬合形成校园主入口形象,同时在南向留出前广场缓冲空间,降低对城市交通的压力;北侧临近后勤出入口布置食堂,减少对日常教学的干扰;中间以S型平面布置普通教学楼与教师办公室,在满足日照间距的同时,自然围合出多层次庭院空间。
我们同步构建了立体的交通与功能系统。在操场下方设置了地下室,容纳停车与专用的地下学生接送区域。 车辆可直接进入地下接送区,实现与地面人车的完全分流,极大缓解了上下学时段对城市道路的交通压力。地下接送区通过楼梯,能便捷地到达每一栋教学楼。设计中还植入了一个小型下沉庭院,将自然光线与新鲜空气引入地下空间,显著改善了等候区的环境品质,体现了对使用者细致的人文关怀。
针对江南多雨的气候特点,地面层面的“无风雨线性链接”系统与地下系统相辅相成。 从主入口开始,通过连贯的廊道与架空层,将三大功能区域无缝衔接,形成覆盖全校的遮蔽网络。师生无论在晴天或雨天,均可通过地上或地下的舒适路径,便捷地到达所有教学与活动空间,实现了真正的全天候校园联通与活动自由。
03 首层学习社区:打造开放共享的“教育基座”
我们有意将首层层高抬升至4.7米,并将其整体规划为一个跨年级、跨学科的“学习社区”。这里集中布置了图书馆、专业教室、合班教室等大空间教学用房,并通过多处连续的架空与开放设计,打破了传统走廊的封闭感。这一层不仅是“无风雨系统”的重要枢纽,更成为了学生可自由穿梭、相遇、进行项目式学习与社交的活跃基座,以开放的空间形态鼓励非正式的学习与互动发生。
04 庭院与生态系统:立体交织的自然滋养
建筑布局自然生成了一系列各具特色的庭院,并与立体绿化系统紧密结合,共同构成校园的生态与景观核心:
地面庭院序列:从南入口的仪式性中庭,到教学区内的“葱绿小院”(自然植被)和“森之舞台”(大台阶活动场),再到北侧寓意“桃李满园”的果木庭院,这些庭院提供了从礼仪到教学、从活动到休憩的多样化户外空间。
立体绿化延伸:绿化不止于地面。我们巧妙地将绿化向垂直维度延伸,在二层活动平台设置绿化树池,并充分利用屋顶空间打造“屋顶农场”。这使得生态景观成为建筑的多维表皮,劳动教育得以融入环境,形成了从地面庭院、平台花园到空中农场的多层级绿色生态系统,让自然触手可及。
05 立面与材质:营造轻盈开放的校园气质
立面采用涂料与金属构件相结合的方式。金属构件的运用提升了建筑的精细度与轻盈感,局部点缀的黄绿色彩则打破了传统教学建筑的肃穆印象,以活泼、通透的视觉语言,传递出开放、现代的校园氛围。
06 结语
本项目最终是在用地局限、班额扩张与现代教育理念的多重要求间寻求平衡的产物。我们希望通过清晰的功能组织、丰富的空间层次与人性化的细部设计,在有限条件下,营造一处既能高效运转,又能滋养学习与成长体验的校园环境。
项目名称:钟公庙中心小学保丰校区
项目地址:宁波市鄞州区钟公庙街道堇山西路276号
建筑面积:42450㎡(地上32095㎡,地下10355㎡)
客户:宁波市鄞州区南部新城建设管理有限公司
设计方: 宁波市民用建筑设计研究院有限公司·少多建筑
项目设计:2021年
完成年份:2025年
设计团队:
方案:少多建筑——周冬、忻超斌、周鑫彪、李真;
施工图:(建筑)方挺、周蓓蓓、沈益、万磊琛、张科杰,(结构)陈庆、孔培莹、胡海波,(设备)金晓峰、焦玉恩、叶挺、罗琦、黄是萍、洪梦静 ;
景观:王燕、寿海腾、洪斐;
装修:金嘉诚、李佳芮、王剑锋;
幕墙:王军;
泛光:唐军江、高雄;
市政:孙晓敏、王琳、周子喆;
智能化:周观乐、张伟栋
绿色雕塑座椅设计来源:一十一建筑设计事务所
摄影版权:新锐图像

立方设计

立方设计

零壹城市

墨泰建筑设计

零壹城市

深圳市建筑设计研究总院-城市建筑与环境设计研究院

墨泰建筑设计

华南理工大学建筑设计研究院

华南理工大学建筑设计研究院

UUA建筑师事务所

众建筑

扉建筑

法国AS建筑工作室

goa大象设计

杭州三日室内设计

圆道设计

立木设计

GOM高目建筑

土木石建筑设计事务所

大正建筑事务所

众建筑

奥凡设计

米丈建筑设计事务所

天津大学设计总院·顾志宏工作室

杭州慢珊瑚设计

米丈建筑设计事务所

都市实践

都市实践

上海交通大学设计研究总院

MAT超级建筑事务所

都设营造建筑设计事务所

亚洲捷程装饰设计

西线工作室

恒新寰宇建筑设计

天元建筑设计

深圳同济人建筑设计

意构建筑

殊至建筑

梓泉建筑设计

华造建筑设计

意度建筑

和立建筑实践

浙江大学建筑设计研究院

畎亩建筑

元新建城

华南理工大学建筑设计研究院

古风建筑

BAU建筑城市设计事务所

非寻建筑

方夏设计

深圳市建筑设计研究总院合肥分院

立方设计

BAU建筑城市设计事务所

十拓建筑规划设计事务所

修舍建筑

南大建筑钟华颖工作室

思序建筑规划设计

思序建筑规划设计

思序建筑规划设计