家,作为生活的容器,是心灵的港湾,交织着爱与温暖。在这温馨的空间中,有一种爱是内敛的,深藏于心;有一种爱是无条件的,包容一切;有一种爱是温柔的,暖化心灵;还有一种爱是热情的,直白而真实。爱的表达没有固定的形式,设计师的追求是将这种爱转化为设计的能量。
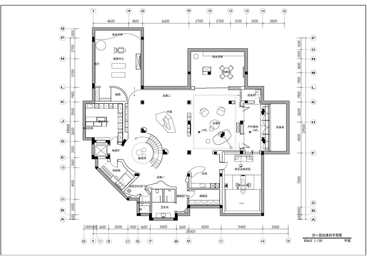
在改造前,地下室昏暗而不合理的布局让空间显得压抑。设计师通过梳理建筑空间,调整结构,巧妙地解决了地下室的采光与通风问题。别墅的设计中最引人注目的部分是中央的中庭。它不仅是光线与空间的交汇点,更是整个居住体验的灵魂所在。中庭的开放设计让阳光从上方洒下,形成一片片温暖的光斑,穿透到地下室和一层。这些光斑随着时间的推移而变化,犹如一幅动态的画卷,时刻在提醒着我们时间的流逝与生活的美好。
设计不仅仅是“设”和“计”的结合,更需要严谨的计算与细致的规划。全屋搭配采用全空气系统,通过BIM软件高效整合,设计师将给排水系统与隐蔽工程巧妙结合,确保每个细节的合理性与结构的安全性。针对地下室的潮湿问题,设计师提供了全面的解决方案,确保居住环境的健康与舒适。这些细致入微的设计,宛如一份无声的爱,是设计师为业主精心准备的健康礼物。
设计师以简约为设计思路,整体色彩以灰、米、咖为主,搭配绿色、藕粉色,线条利落流畅,存粹干净,无需复杂装饰,一眼感高级的质感,奠定品质家居生活的基调。
爱的表达需要发自内心去感悟和理解,遇见爱的承诺开始,相信在这座别墅中,将会慢慢添置各种生活的点滴,每个空间都会流淌着爱的温度,让每一次归属成为心灵的归宿。爱的表达,在空间中悄然绽放。
项目名称:爱的表达
项目地址:浙江绍兴
项目面积:1000平方米
完工时间:2024年12月
设计单位:芳菲室内设计工作室
主案设计师:沈利方
主要材料:岩板、HV系统、本杰明涂料
项目摄影:刘鹰

八荒设计

介介工作室

壹舍室内设计

张烨建筑事务所

舍下草堂

辰境设计

时上建筑空间设计事务所

NOTHING DESIGN工作室

吾隅设计

深点设计PDD

杭州慢珊瑚设计

杭州辰佑设计

PhoebeSayswow建築事務所

万境设计

O筑设计

木又寸建筑事物室

左通右达建筑工作室

杭州广飞室内装饰设计事务所

之境内建筑设计

隐一设计

今朝风日好

UnderRoof

常名建筑设计事务所

游牧林工作室

几言设计研究室

1890.STUDIO

共生形态设计

画里设计

观行设计

天马设计

在造建筑工作室

意思建筑

马志成工作室

戏构建筑设计工作室

平行公社

HAS design and research

壹舍室内设计

几言设计研究室

漫缦设计事务所

方居建筑设计事务所

无研建筑

堤由匡建筑设计工作室

费弗空间设计

CUN寸DESIGN

桐话建筑设计

理想猫工作室

涅十设计

白造设计

大不了地设计工作室

构设计事务所

张大为建筑工作室

简璞设计

山点水建筑设计事务所

零筑设计

CUN寸DESIGN

SUHO HOME

度合一衡

巨人设计

ACME木及设计

隹禾设计工作室

朗荷STUDIO

wooom studio