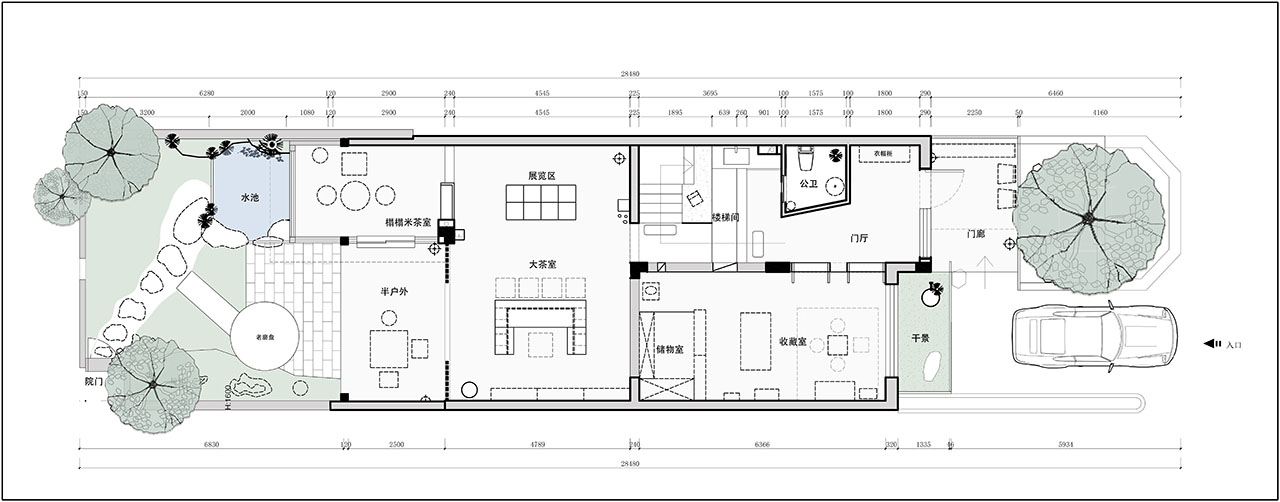
本案隐一院子,位于重庆蓝湖郡20年老别墅区,环境优美,闹中取静。主人热爱生活、喜好收藏、茶、香、酒。我们探索生活工作空间与环境相生相融,环境、空间、人相互滋养。重塑空间关系及空间尺度,以美好生活方式为媒介,成为栖心之地。这里是闹市里的心灵隐居地,因生活而起。由心而发;在这里随时随地都被大自然所包裹着;原有的建筑空间,是一个很平的外立面,通过我们整体的对空间的需求和梳理,建构了很多灰空间,形成了空间的场域感。也把新的功能梳理进去,使得整体的空间更为的合理,既能满足舒适性,又能够满足精神性!
自然的光影成为最美好的画面,大茶室吊灯荒川上野手工吹制的,仿若有宇宙星辰之感。小茶室的法国手工灯,色温控到2300k,空间与自然共场如月光般抚慰人心。餐厅玻璃手工灯,错落有致既解决了层高高低不平的问题,也让用餐更有违合感更有氛围感。整体灯光使用克制,也全部可以调光,此空间因自然光及灯光而更美好。
空间具备生长性与可持续性,重庆的夏天一楼几乎不用开空调,门窗打开,也几乎没有蚊子,本案宜居与自然共场,让身心被滋养。
项目名称:隐一院子
项目地址:重庆市渝北区蓝湖郡东岸四组团16-7
项目面积:380平米
项目业主:张婷婷
设计单位:重庆隐一设计
设计时间:2022年
完工时间:2024年4月
项目总造价:400万
每平方施工造价:1800元/平米
主创设计师:张婷婷
设计团队:张祎、龙迎新、谢成亮、唐诗蕊
施工方:隐一精工
主要品牌:意大利zieta、driade、casamania、荒川上野手作灯、iguzzini、flos、中古家具及收藏品
摄影师:边界人摄影

山地土壤室内设计

边缘计划建筑工作室

未午建筑事务所

Say Architects

海浪创物

松涛建筑设计事务所

喜玛拉雅设计装修

凡筑设计

全文室内设计

超级番茄设计

千墨设计

VANISHED DESIGN

拙人营造

有田建筑空间设计

陶磊建筑事务所

愈宅设计

伊波莱茨建筑咨询

米凹工作室

未止工作室

十合设计

非知名设计事务所

拾集建筑

相与还空间设计

柒构设计顾问

凡西空间装饰设计

林礼聪工作室

山山园林

肃画建筑

谱观建筑设计

非知名设计事务所

脚本建筑研究室

囙设计工作室

IARA设计研究事务所

深点设计PDD

凿枘设计

PMA普玛建筑设计事务所

直线建筑设计事务所

琢磨设计

仟物栖所事务所

由里空间设计

家语设计

熹维室内设计

介介工作室

阐领建筑

SLT设计咨询

Say Architects

深思维设计

纸间营造

黑白木设计工作室

CUN寸DESIGN

里所空间设计事务所

艾洛设计

B.L.U.E.建筑设计事务所

NOTHING DESIGN工作室

十拓建筑规划设计事务所

里外工作室

里外工作室

深度进化设计事务所

立方体设计事务所

有维建筑设计

有物设计顾问

隹聿设计工作室

慕达建筑