设计加:顶端设计
TAOA 798工作室
北京 收集
 

北京798艺术区是一个具有广泛影响力的艺术区,同时也是工业遗存园区。大量的工业厂房被翻新用作艺术类空间,整个园区具有一种野性的活力与自由性。这种特殊性吸引我们选择这里作为事务所的办公场所。

 

这是一个改造设计。设计的初衷是简单,舒适,小巧且优雅,并尽可能的和自然接触,同时我们希望当新的建筑被嵌入至周遭参差不齐的砖墙建筑群中时,其明朗和清新的状态能够给老旧的街区带来新的活力。

 

建筑外墙被阳极氧化铝板包裹,有着柔和的反射性。为了避免过度日晒和同对面建筑的对视,我们对整个西侧的铝板面进行了折弯与冲孔,使建筑形体具有半透明性。

 

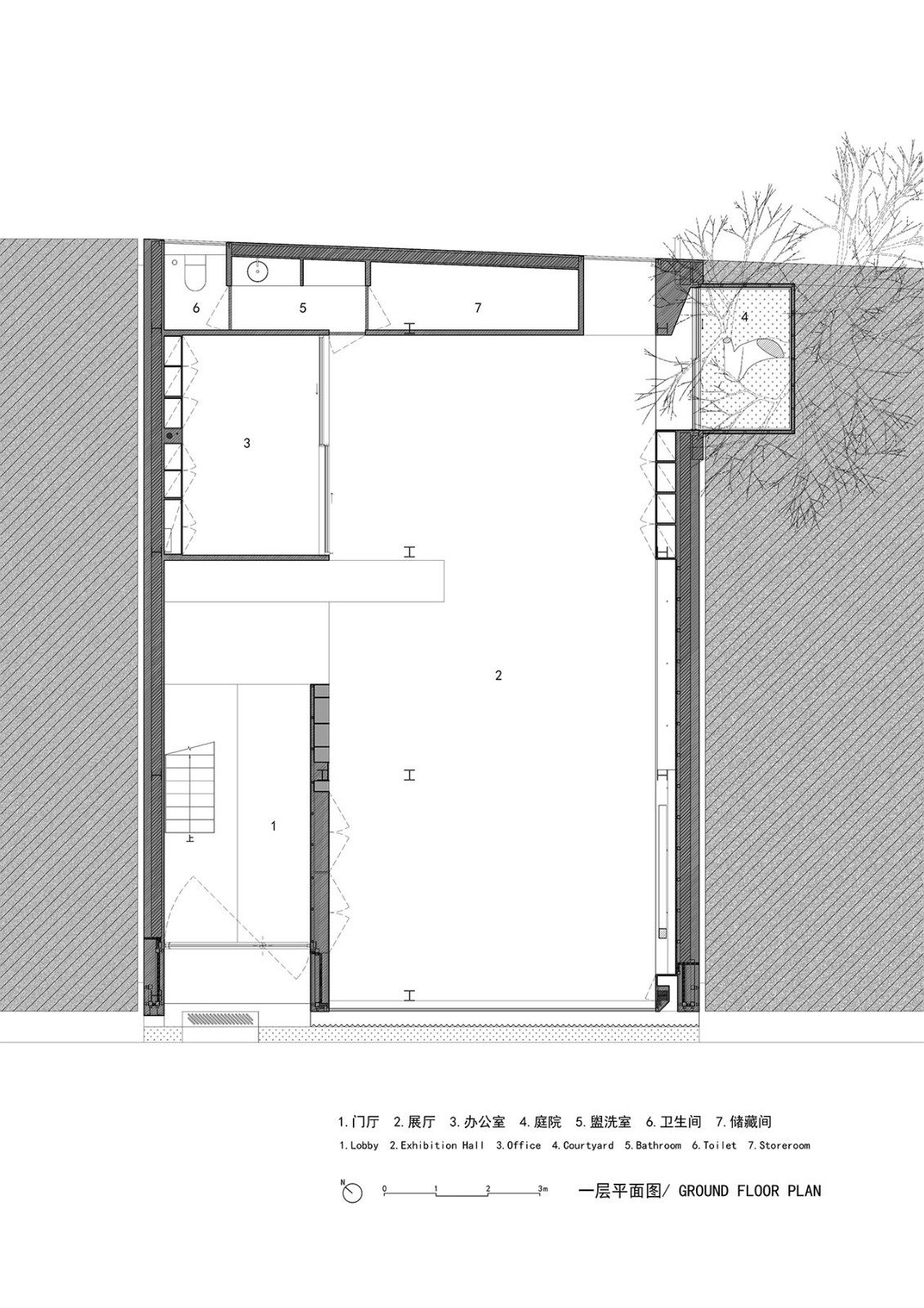
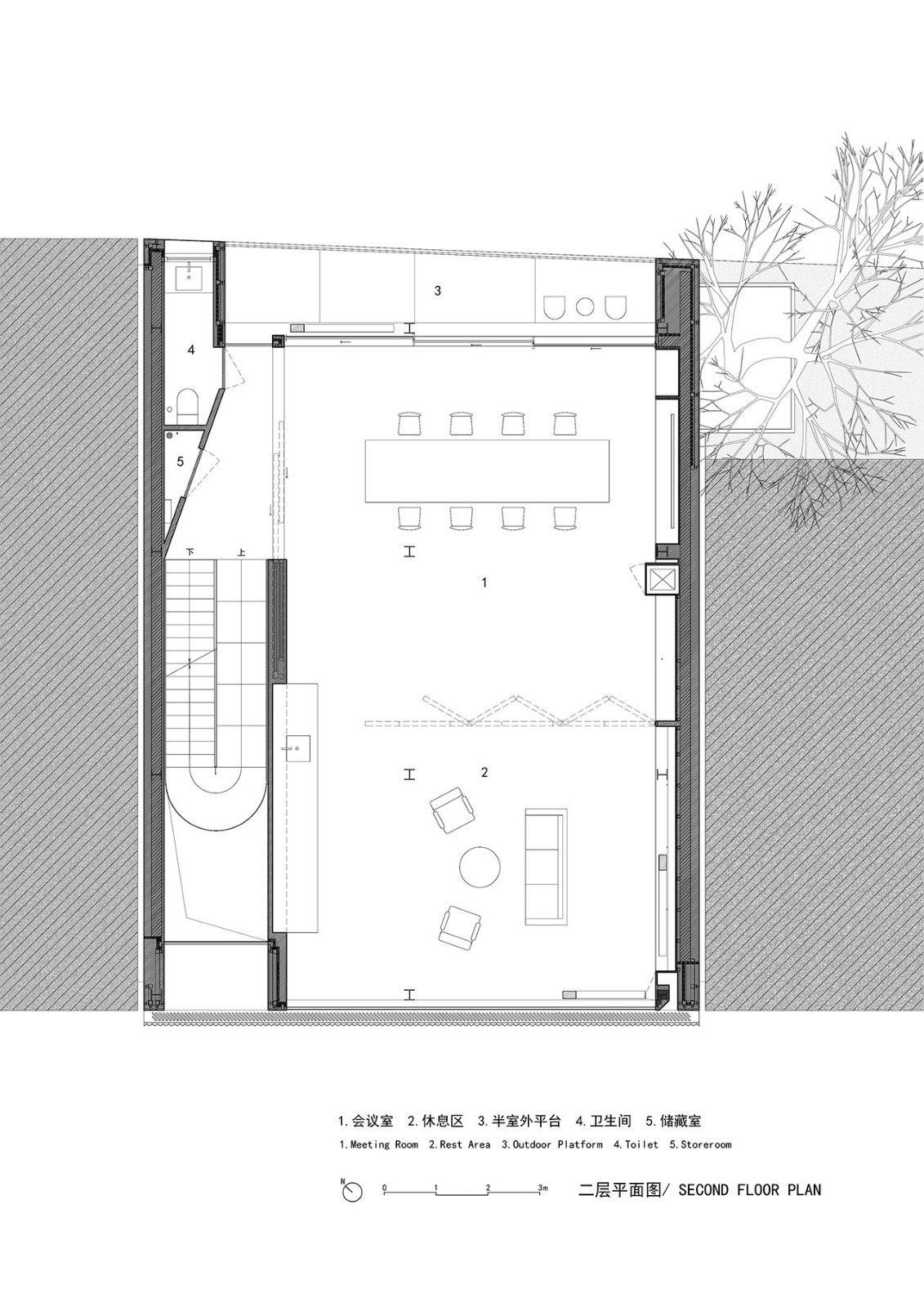
改造后,一层为展示空间,二层为会议和接待区,三楼用来工作,为了将三个楼层更好地联系成一个整体,我们取掉一部分楼板,设置了从一层垂直向上直至屋顶的挑空空间作为楼梯间,同时也是入口处的开放前厅。拾级而上,空间逐层缩小,西侧窗也随之从地面上升到屋顶。午后,阳光透过穿孔铝板洒满整个空间,柔和而静谧。

 

建筑挤在南北两侧建筑的缝隙之中,只能选择朝向东西开放,一楼东墙作为园区界墙必须保留。二楼东墙被彻底打开,并朝向东面设置了半户外露台,三层则在东侧设置了微型露天庭院。生长在东南角的一棵大树成为人们接触室外和自然的线索。一层依托树干拓展出一方小院,三楼则在树下做出一个外挑的阳台。通过和自然的接触,建筑更为生动,同时也为人们带来了愉悦。

 

项目名称:TAOA 798工作室

类别:更新项目, 办公室内设计

城市:北京市朝阳区

面积:450 m²

建筑师:TAOA 陶磊建筑

项目年份:2023

厂家:M77, 彼易

主创建筑师: 陶磊

设计团队:孟祥瑞、陶冶、何晓甜

施工负责:陶冶

施工单位:思享营造

项目业主:TAOA 陶磊建筑

推荐

山地土壤办公空间

山地土壤室内设计

大理边缘计划建筑工作室改造

边缘计划建筑工作室

未午建筑事务所办公空间

未午建筑事务所

古良文化办公总部

Say Architects

海浪创物办公空间

海浪创物

胜加办公室

松涛建筑设计事务所

美晖新办公室

喜玛拉雅设计装修

凡筑工作室

凡筑设计

全文设计办公空间

全文室内设计

超级番茄办公室

超级番茄设计

千墨办公空间

千墨设计

边界卉空间研究所

VANISHED DESIGN

ZMAKE拙人营造办公室

拙人营造

1949办公空间

有田建筑空间设计

像家一样的工作室

愈宅设计

阳狮集团上海总部

伊波莱茨建筑咨询

米凹办公室:拉都路上四台阶

米凹工作室

隐一院子

隐一设计

未止办公室

未止工作室

“火”办公空间

十合设计

unknown design办公室 - 大隐于市,小隐于野

非知名设计事务所

拾集建筑办公室及盎然咖啡

拾集建筑

xyh.design studio办公室

相与还空间设计

微型办公空间的诗意重塑

柒构设计顾问

凡西空间办公室 - 多元化办公空间

凡西空间装饰设计

城中间缝里流动的办公室

林礼聪工作室

485 MetaGalaxy办公室:心所·乌托邦

宇合光年

汖墟

山山园林

ADWANGStudio办公室

肃画建筑

SpActrum谱观上海办公室 - 生为建造

谱观建筑设计

Unknown design办公室

非知名设计事务所

脚本建筑研究室扩建

脚本建筑研究室

囙设计工作室

囙设计工作室

小堂12号

IARA设计研究事务所

太阳下山·梦启醇香

深点设计PDD

Submarine潜水艇办公舱

凿枘设计

“三重桌”纳福胡同13号

PMA普玛建筑设计事务所

直线建筑上海办公室

直线建筑设计事务所

ONEMORE办公室

琢磨设计

仟物栖所工作室改造

仟物栖所事务所

回归本原办公室

由里空间设计

设计联合未来社区

家语设计

熹维办公空间

熹维室内设计

介介工作室办公空间 - 造一个胡同里的小世界

介介工作室

WEA 办公室

阐领建筑

SLT 办公新址 - 以未知回应未知

SLT设计咨询

say architects社区办公室

Say Architects

深思维办公室2.0

深思维设计

Paper Design办公室 – 花辞

纸间营造

黑白木设计办公空间 - 怀旧的未来

黑白木设计工作室

谁最中国-办公文化空间

CUN寸DESIGN

LISO空间设计事务所办公空间

里所空间设计事务所

艾洛设计昆明办公室

艾洛设计

B.L.U.E.建筑设计事务所北京办公室

B.L.U.E.建筑设计事务所

NOTHING DESIGN上海工作室

NOTHING DESIGN工作室

STWD十拓建筑办公室

十拓建筑规划设计事务所

极“紧”办公空间的机会\Ollie办公空间

里外工作室

LPI广告工作室办公空间

里外工作室

深度进化设计事务所办公室

深度进化设计事务所

Mix Design办公室

立方体设计事务所

廊桥办公空间

有维建筑设计

有物办公室

有物设计顾问

隹聿设计场地

隹聿设计工作室

慕达成都高空办公室

慕达建筑

设计放心选,监督有保障
  • 更好设计

    这里汇聚顶端、前沿的设计团队与项目创意

  • 更多选择

    这里聚合更多国内外、全产业的服务与产品

  • 全面配套

    可需求发布、招标竞赛、咨询管理配套服务

  • 管控保障

    针对服务产品全程监督管控与质量跟踪评价

上设计加网,实现精益营销
  • 高质展示

    入驻企业专站在市场门户高质的展示传播

  • 精准客群

    几千团队、海量设计师、优质需求与客群

  • 全面营销

    企业推广、合作、招聘、企宣等一站到位

  • 顶层发展

    这里汇聚设计产业供需的顶端圈层共发展