一棵法国梧桐长到二三十米需要多少时间?
在上海依然炎热的十月,从肇嘉浜路转到襄阳南路上,立刻在浓浓梧桐树荫的遮蔽下变得清凉起来,脚步放慢了,时间也仿佛慢下来。
襄阳南路原名拉都路,1918年至1921年由原法租界公董局修筑。这条全长1499米、宽16米的小马路上,有酒店、花园洋房、1930年代的新式里弄、幼儿园、小菜场、写字楼、网红咖啡店、地标性商场……车流是固定自南往北的单行方向,人是自由流动的,这条路的每一个空间都容纳了生活的日常。
工作室的窗口就对着襄阳南路。
从肇嘉浜路到淮海中路,襄阳南路在中间贯穿起五条马路,从建国西路路口往北,便是这里为数不多的几座商务楼其中之一。它建成于2003年,独特气质源自综合性业态——大厦内分布着酒店、公寓、办公、商业,进入其中更能发现在独立工作室、精品咖啡、健身房、舞蹈教室、发型沙龙、美甲美容馆、轻餐饮等的运转中形成的社区氛围。
米凹办公室位于大厦裙楼。从东侧和南侧两扇落地玻璃窗望出去正是襄阳南路上两棵法国梧桐,树冠几乎达到六七层楼高度,枝叶在午后阳光照耀下闪着蜜色的琥珀光芒。
如果把襄阳南路看作开放、公共的城市图景,这座大厦看作围合、内向、半私密的社区图景,工作室则像是介于二者之间的过渡空间,将视线由街道引入,穿过内向空间重返城市街区。
大厦裙楼的办公空间与塔楼公寓共用同一套承重体系,形成同时包含住宅尺度和大于公寓户型几倍范围的办公空间格局。
在工作室门口首先见到的是现浇混凝土的前厅。这里用展览的形式布置了一个“非接触”橱窗,透过玻璃大门,路过的人可以进行快速浏览,留下对米凹的初步印象,有兴趣的话还可以扫描门边的二维码做进一步了解。这处前厅以退让的姿态与活动在大厦内的人们建立起对话关系。
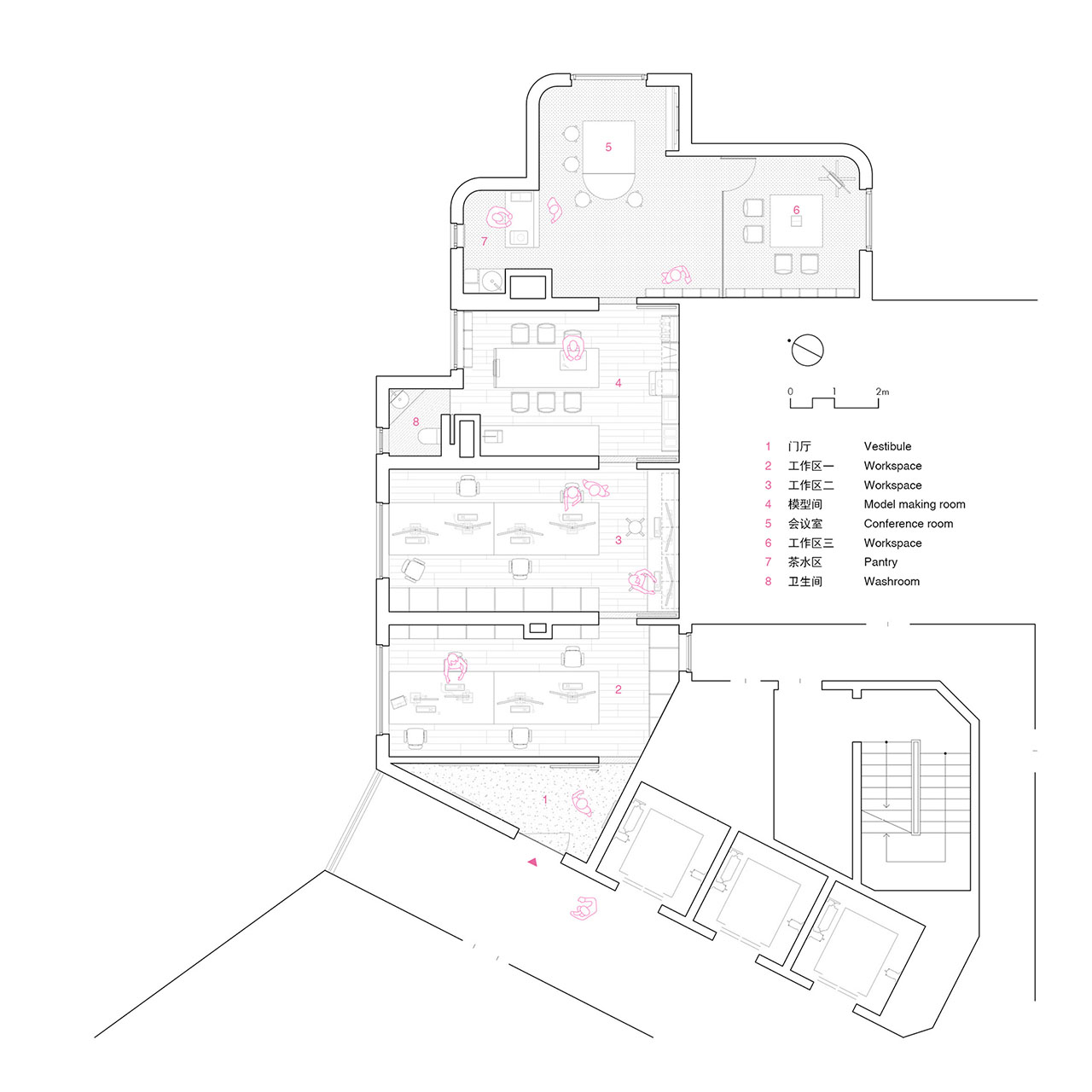
以入口的三角形空间为设计起点,自西向东依次生发出四个空间。建筑内原本南北向的居住空间活动路线被调整为东西向行进路线,穿越空间布局的同时融入住宅的亲切感觉与公共空间的开放感。
与小三角入口平行,自西向东依次排开的三个空间保留与常规居住空间形态一致的层高,在获得亲切的身体尺度感受的同时,通过改变进入方式而得到完整的公共空间体验。
在相邻空间连接处增加台阶,用逐级抬高地面的建筑手法规划出带有明确方向性的身体记忆。当每天在这里工作的人们使用这些空间时,上/下台阶的动作营造了仪式感和安全稳定的体验。
带着熟悉中混杂陌生的感受沿穿行路线来到东侧尽头,进入工作室客厅大空间。
空间形态对应住宅中的客厅,进入方式与之相似,而对空间高度的调整改变了“洞口”与人的关系。抬升层高以及增加台阶带来地面自然调整之后,置入两扇大尺度落地玻璃窗使空间成为更具开放性和丰富性的公共区域。法国梧桐高大的“身影”透过玻璃窗延伸到室内,晨昏轮转、四季更替都成为空间的一部分。夜晚室内的柔和灯光吸引了街道上行人视线。在这里,体验是动态的。
在客厅大空间的西侧墙边,安置了永嘉路第一个办公室使用的一排书架。这是此次项目可持续设计的一部分,同时让时间和空间变迁后情感意义上的连接得以延续。
在低碳目标的驱使下,可持续设计在降低能耗和循环利用材料及家具两方面完成了从建造到使用的完整构架。
能耗方面较为核心的是保温和气密处理。在建筑内侧重新搭建保温系统避免冷桥。对全套门窗进行更换,配合高性能门窗设计精密节点,达到优异气密效果。
设备利用上,在工作时段使用大厦物业提供的空调系统,并增加一套VRV空调系统在过渡季和非供冷/供热时间段作为补充。在春、秋过渡季节,电动开启的落地窗亦能为办公室提供良好的通风环境。此外,全热交换新风系统的使用提高了热回收效率。
通过整个系统的搭建和运用,工作室能耗被控制在每年每平方米70千瓦时,相较于上一个环中商厦办公室,单位面积能耗降低25%。
在环中商厦办公室已进行尝试的低能耗方案在这里得到完善和提升,另一方面,走进前厅即有一种往日情景闪现的怀旧感觉。钛锌板经重新切割后层叠排列覆于顶部,唤醒对“空的空间”的记忆。
从地板、办公桌椅、书柜到部分开关、插座等都来自上一个办公室,接近一半的设备、材料和家具得到循环利用。
从空间入手到功能后置是这次设计思路与以往的不同。寻找在一定距离保持与人群的接触和链接的方式,对完成“街道-大厦-工作室-街道”过程需要经历多少个空间的梳理,是设计的出发点。在大厦中增加小三角空间,用错位方式进入并穿越“住宅”,到达“客厅”空间进而望向襄阳南路,这个过程中空间是安定的,人的感受经历变化并重新定义与街道的关系。工作室的四级台阶串联起大厦的微社区环境和人来人往的城市街道。
办公室功能以家具的方式被“后知”地置入空间。对已有的长桌、储物柜、模型桌、置物架等组合安排使单一空间功能模糊而可变。建筑秩序被作为高于平面合理性的规则对待,与城市关联的感受通过建筑形式获得。
项目中包括材料和家具在内的可持续设计,是环中商厦办公室的延续;与街道和社区的连结让人想到康晖里那条“室内的茶陵路”;住宅和公共在X和Y轴上的体现像是对棠之酒店的呼应,而它现在就在这里,在繁茂的树荫与热闹的人群中,在襄阳南路。
设计单位:米凹工作室
项目地点:上海市徐汇区
室内面积:110平方米
建成时间:2024年
项目负责:周维
设计机构:米凹工作室
设计团队:许曦文、韦天南、吴雪婷、叶葭焕、张冯韬、吴砚雯(实习)
机电顾问:上海三匠机电科技有限公司
照明顾问:米绅照明设计(上海)有限公司
施工单位:禾邑精造
品牌支持:CIVRO,JUNG,RHEINZINK,Rise,KOKUYO,SPSS,Artek,DAIKEN,TOTO,SilentGliss, ege,raumplus,Benjamin Moore,迈洁石材
图片摄影:梁山

山地土壤室内设计

边缘计划建筑工作室

未午建筑事务所

Say Architects

海浪创物

松涛建筑设计事务所

喜玛拉雅设计装修

凡筑设计

全文室内设计

超级番茄设计

千墨设计

VANISHED DESIGN

拙人营造

有田建筑空间设计

陶磊建筑事务所

愈宅设计

伊波莱茨建筑咨询

隐一设计

未止工作室

十合设计

非知名设计事务所

拾集建筑

相与还空间设计

柒构设计顾问

凡西空间装饰设计

林礼聪工作室

山山园林

肃画建筑

谱观建筑设计

非知名设计事务所

脚本建筑研究室

囙设计工作室

IARA设计研究事务所

深点设计PDD

凿枘设计

PMA普玛建筑设计事务所

直线建筑设计事务所

琢磨设计

仟物栖所事务所

由里空间设计

家语设计

熹维室内设计

介介工作室

阐领建筑

SLT设计咨询

Say Architects

深思维设计

纸间营造

黑白木设计工作室

CUN寸DESIGN

里所空间设计事务所

艾洛设计

B.L.U.E.建筑设计事务所

NOTHING DESIGN工作室

十拓建筑规划设计事务所

里外工作室

里外工作室

深度进化设计事务所

立方体设计事务所

有维建筑设计

有物设计顾问

隹聿设计工作室

慕达建筑