场地与氛围
廊园是一个很小的设计,功能是为串联起两个室内空间的动线,并和外界的自然建立良好的关系。
场地处于一个普通的办公园区内,单元式、半开放的多层建筑内院景观随意而普通。好在院内所种树木早已成林,早上和正午的阳光越过多层建筑的屋顶洒满庭院。在周遭繁忙的景象里,这是一片难得的静谧之地。
光线与空间
我想保留并放大这个静谧的感觉——不仅是院内的景观,还有建筑内游走时的氛围。同时让院子里的杂树,通过设计的组合变得“入画”。
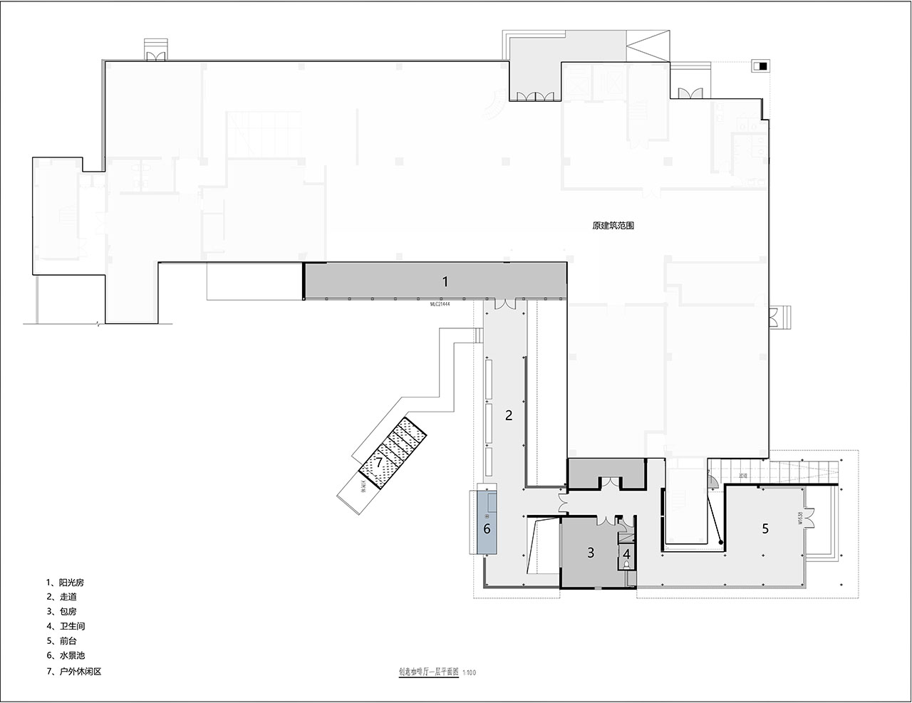
设计之始,我们现场测绘了所有树木。根据这个树木的点位,植入一个实体的盒子和一个虚空间的连廊,来串联已有L形建筑的两支。
实体部分用木纹清水混凝土浇筑,虚空间部分用白色陶瓷洞洞砖作为围护结构。
从实体空间走向虚空间的过程,刻意营造了光线氛围从漫射光到封闭,再到半开敞廊架的明亮光线氛围。视线也从封闭走向开放,欲扬先抑的设计让内向庭院的原生态大树产生了聚焦的效果。
除了清水混凝土,用U型玻璃过滤南向的强烈光线,氤氲的光感让空间静谧。
长廊的陶瓷洞洞砖,过滤了光线;营造了不同视线限制程度的游走关系。靠近主人流通过的连廊,通过面向室内空间一侧安装的洞洞陶瓷砖,避免了餐厅被连廊内路人的视线干扰。非靠近主人流方向的连廊一侧,完全打开,营造了餐厅半私密的小庭院。面向四合院大树一侧,控制洞洞砖的安装,形成框景。
整体长廊体现出轻质、纯白、静谧的感觉。
材质与建造
浇筑木纹混凝土的过程,试验了100宽,200宽、挤浆和不挤浆等多种效果,最后选定200宽带挤浆的效果。
木纹清水混凝土内墙保留原有的颜色和肌理,外墙只保留肌理,但整体喷白。白色的肌理与长廊的白瓷洞洞砖形成统一的表情。
陶瓷洞洞砖,在比较了圆形、方形、菱形、四叶草形等多种空洞形态后,选择了四叶草的形态。因为这种形态在建筑设计中用的少,稍微不是那么跟风。陶瓷的材质,又让室外的建筑有了室内的感觉。
长廊屋顶用钢板材质,控制边缘的厚度,并让开现有的树木。
这是一个很小的设计,小到只是把现有建筑稍微做了连接,它赋予了原有空间更轻盈的气质,以及慢下来的心态。
项目名称:廊园设计,静谧与光明
项目地址:湖北省武汉市江夏区高新大道818号
项目规模:319㎡
业主:武汉高科医疗器械园有限公司
设计单位:UAO瑞拓设计
主创设计师:李涛
设计团队:张杰铭、龙可成、童亭、姜海洋、阚文慧
设计时间:2022年5月
施工时间:2022年12月
主要材料:
木纹混凝土 - 现场浇筑
陶瓷空心砖 - 东鹏
乳胶漆 - 立邦
中文:李涛
摄影:此间建筑摄影-赵奕龙

三谷设计

孚提埃建筑设计事务所

大椽建筑设计事务所

末广建筑

事建组

Wutopia Lab

朱小地建筑设计事务所

goa大象设计

天元建筑设计

天华建筑设计

否格设计

印文设计

C+Z建筑师工作室

直向建筑

天元建筑设计

空气联盟建筑事务所

互建筑

土木石建筑设计事务所

里未设计

亿端国际设计

同一建筑设计事务所

万华产品研发中心

Antoine Predock

都市实践

房木生设计事务所

大成设计

时境建筑

米思建筑

米丈建筑设计事务所

无样建筑工作室

共生形态设计

徽宗设计研究室

UDG有关工作室

本哲建筑

PLAT ASIA

MOC DESIGN OFFICE

小隐建筑

园·舍建筑景观

十拓建筑规划设计事务所

Kokaistudios

明懿空间设计

木君建筑与室内设计事务所

小隐建筑

三文建筑 – 何崴工作室