引言Introduction
“通过仪式”是指一种处境向另一种处境的过渡,呈现为三重序列:分离、过渡与聚合。个体脱离原有位置,进入两个世界之间的阈限空间,在那里身份被悬置、时间被凝固,最后以新的状态回归社会。
——Arnold van Gennep《通过仪式》
场地
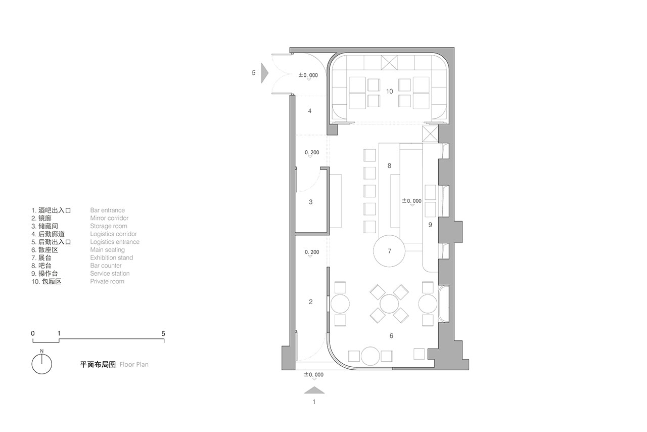
项目位于上海市永源路街区的地下一层,初见现场,一处70平米的空间,却有着诸多制约条件。店铺位于狭长通道内侧,无临街展示界面,无自然采光与景观,且紧临园区卫生间。
面对困境,我们明确了隔离街道且向内探索的设计思路,后现代建筑追求 “事件”而非“物体”,我们意图创造一个让人体验身份流动性的文化装置。
布局
我们将通过性空间凝练为一进一出两个廊道,一侧为主入口,另一侧连接后场,之间设置镜面材质的储物间,这样处理最大程度的保证了经营空间的完整性,整体布局呈现多条轴向对称,中间为操作台和吧台,外侧为散台区,内侧为可开合的包厢。
空间内置了新的框架结构,强化区域划分,并将地面抬高200mm,在营造入口仪式感的同时解决吧台与操作台的高差问题。
自此,我们试图以空间为载体,呈现关于“通过仪式”的三个阶段。
分离仪式
店铺的入口是一个端头为镜面的廊道,创造了一个向内延伸的虚拟空间。它既不是"外部街道",也不是"内部店铺",它是一个过渡的通道,让顾客的身体在镜像中复制——真实的自我与镜中的虚像并存。顾客在走进这个廊道时,其日常的身份被暂时搁置,开始准备接受作为体验者的新身份。
过渡仪式
穿过廊道,进入店铺内部,顾客就进入了纯粹的阈限空间,这是仪式的核心阶段,个体处于身份悬置、规范模糊、充满可能性的“之间”状态。这里是多个场景的集合地,每一个
设计元素都在强化这种“之间”感。
顾客在壁炉、假窗、圆桌、绿椅构成的“之间”地带徘徊,身份处于模糊状态。
这个阶段是“反结构”的——日常的社会等级、行为规范被暂时打破,人们进入一种“交融”状态。顾客在此阶段“什么都不是”,也因此“什么都可以是”——他们的身份是开放的、流动的、正在生成的、与场景相对应的。
聚合仪式
当顾客穿过另一个廊道回到街道时,他们完成了整个循环。
他们已不是进入时的那个“旧我”,他们带着空间体验的痕迹,可能是放松的心情、美好的记忆、或对某个场景的记忆,重新融入日常生活。
聚合并不意味着阈限体验的消失,而是将其内化为个人经验的一部分,顾客未来可能会因为这次体验而再次到访,或者向他人讲述这个空间——这都是仪式效果的延续。
愿景
《通过仪式》中指出,人的一生由无数过渡构成,每一次转换都需要“分离-过渡-聚合”的仪式承载,Bar Vena的空间正是对这一理论的回响。
在现代生活的夹缝中,酒吧是一种仪式性的缓冲地带:让人们在理性化的日常之外,获得短暂卸下社会角色的空隙,这里不只为饮酒而设,更为都市人提供一个可以重新触碰自我的过渡之所。
项目名称:Bar Vena
项目功能:葡萄酒&鸡尾酒吧
项目地点:上海市静安区永源路街区
建筑面积:70㎡
竣工时间:2026.1
业主方: Vicky & Bob
设计单位:即时设计研究所(IM Design)
主持建筑师:周小富
设计团队:周小富、傅帅、李帅、李敏
施工单位:杭州荣升装饰工程有限公司
材料 :木、不锈钢、艺术涂料、洞石、皮艺等
摄影:刘国威

OFFICE AIO

光和一切

涩品创作小组

平衡空间设计

一间建筑

TOPOS DESIGN

HOOOLDESIGN事务所

RooMoo

PIG DESIGN

未见筑设计事务所

上海问和答

乔和桥治建筑实验室

上海问和答

低态建筑

三厘社

線状建筑设计研究室

新冶组设计

大栋建筑

泛域设计

泛域设计

UnderRoof

白菜设计

唐木体验咨询

平衡空间设计

奇偶创艺事务

唐木体验咨询

星球建筑事务所

卓汉苏文建筑事务所

设计秩序

RooMoo

ATLAS

Studio 10

贰木建筑

时隅设计

成都VGC设计

尚希设计

鼎点室内设计

of gaaarden

of gaaarden

Mirabeau Architecture

徽宗设计研究室

E27 STUDIO

E27 STUDIO

Mirabeau Architecture

壹阁设计

TOPWORKS

蜂鸟设计

itD studio

贰方设计

hcreates罕创室内设计

间禾建筑设计

PIG DESIGN

ATELIER I-N-D-J

构看建筑设计

西凹设计

西凹设计

HOOOLDESIGN事务所

杭州一展室内设计

RooMoo

上海问和答

WOOTON DESIGNERS

I.F.S.E. SPACE CREATIVE LAB

壹所设计工作室