「朝骋骛兮江皋,夕弭节兮北渚。
鸟次兮屋上,水周兮堂下。」
——《楚辞·九歌·湘君》
跳海酒馆杜甫江阁店坐落于长沙湘江河畔文庙坪,旨在为向观光产业转型的该市蓬勃的青年社群提供啤酒餐饮服务,并试图在此老旧居民街道营造一隅跨越边界的多元文化空间。
文庙坪是长沙市历史文化街区,因清代长沙府学宫得名。第二次世界大战文夕大火中,作为湖南首府的长沙城市界面被彻底烧毁,并于社会主义时期被工业化地应需重建。R-BAS大棟建築再次受邀操刀跳海酒馆设计。品牌希望在基地构筑回应湖湘特色的室内,为之赋予满足营运的功能,同时与当下「网红」餐饮形成差异化。
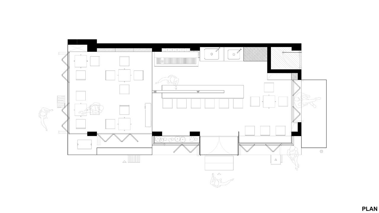
设计灵感源自20世纪在地现代主义建筑记忆——长沙火车站的水平立面、竖向幕墙杆件及网格平面组织型式。朝北的入口和大屋面则体现楚辞记载的民居范式。R-BAS将铺地抬高,组成多级高度不一、虚实相间的台阶、栽有南方蕨类植物的花池、座椅。室内外增设了漂浮桌板,让利用场景灵活化。三角落水管被引入,「水周兮堂下」,使立面与休憩家具有机结合。
局部裸露的旧结构与由角钢制作的色彩跳跃的蓝色十字柱梁共同强调了历史和当下的对话。十字柱梁亦为照明灯具提供支撑。出于商业文化原则,跳海酒馆杜甫江阁店被定义成一间「野生美术馆」。从而在该项目,设计师致力将「反思性怀旧」理念贯彻始终。场地主要材料选择了80年代流行的纸皮马赛克砖、随磨随浇水混凝土及钴蓝玻璃。这是深思熟虑的结果,令酒馆得以完美融入朴素日常的社区环境,而非开天辟地式地创造一个社交媒体「打卡」点。
为了尊重城市的既有工业化脉络,空间有意使用大量不锈钢材。不同碳含量的钢材在室内分别承担吸附宣传物料看板与结构装饰件的功能。R-BAS对老式钢窗节点进行反复研究和转译,发明了一套同隔墙、天花、固定家具合为一体的三重门窗套—框—扇肋系统,使旧日建筑以当代手法轻盈地呈现。
项目名称:跳海酒馆杜甫江阁店
项目地址:湖南长沙
建筑面积:55㎡
项目类型:商业类室内设计
设计方:R-BAS大栋建筑
项目设计:2024
完成年份:2025
设计团队:吴泽玮/崔晓
客户:跳海
摄影版权:王耀彬

OFFICE AIO

光和一切

涩品创作小组

平衡空间设计

一间建筑

TOPOS DESIGN

HOOOLDESIGN事务所

RooMoo

PIG DESIGN

未见筑设计事务所

上海问和答

乔和桥治建筑实验室

上海问和答

低态建筑

三厘社

南京缐状建筑设计

新冶组设计

泛域设计

泛域设计

UnderRoof

白菜设计

唐木体验咨询

平衡空间设计

奇偶创艺事务

唐木体验咨询

星球建筑事务所

卓汉苏文建筑事务所

设计秩序

RooMoo

ATLAS

Studio 10

贰木建筑

时隅设计

成都VGC设计

尚希设计

鼎点室内设计

今朝风日好

今朝风日好

Mirabeau Architecture

徽宗设计研究室

E27 STUDIO

E27 STUDIO

Mirabeau Architecture

壹阁设计

TOPWORKS

蜂鸟设计

itD studio

贰方设计

hcreates罕创室内设计

间禾建筑设计

PIG DESIGN

ATELIER I-N-D-J

构看建筑设计

西凹设计

西凹设计

HOOOLDESIGN事务所

杭州一展室内设计

RooMoo

上海问和答

WOOTON DESIGNERS

I.F.S.E. SPACE CREATIVE LAB

壹所设计工作室

间禾建筑设计

呐么Lab