东回镇位于云南省普洱市澜沧拉祜族自治县,东回镇为了发展旅游业及特色产业,对下属村落进行整体环境、产业和布局改造,改造后命名为“改新村”,实现了村容村貌和产业发展的大变样。改新村四周大山环绕,有良好的地理气候风貌,当地以咖啡为主要产作物,作为上海黄浦区对口澜沧县的东西协作扶贫项目,计划在此基础上设立咖啡加工工厂并建立配套的咖旅庄园。
咖啡研学中心,作为与咖啡产业贯通一二三产的门户建筑,被设立在整个村子民居和工厂交接的主入口处。项目旨在打造一个让人落脚休憩与观光的场所,普及咖啡相关知识、提供咖啡体验、开展咖啡文化交流,同时在此为当地少数民族村民和对咖啡感兴趣的外地人进行咖啡产业相关的培训(采摘、烘培、冲泡等),并在一定程度上补足村子的公共配套基础设施(社区图书馆、卫生间等)。
乡村笔记是一个专注于乡村场景的教育服务平台,而研学中心项目也缘起政府引入乡村笔记作为运营方对该建筑进行重新的策划和定位。首次到达现场是十一长假的一个阴雨天,通过曲折蜿蜒的山路到达村落。初具雏形的钢结构框架是前期工厂建设时规划的,在路边就能很明显看到这个构筑,它坐落于整个村落的中心点,周围原始的村落房屋环绕,设计的任务则是在这个框架的基础上重新设计以满足新的功能需求。
云南位于地震带上,建筑抗震等级位9级,那原有的钢结构就不能减只能加,这对建筑的空间和造型就有了一定限制,在和结构专业的几次交流后,通过结合造型的推敲(屋面形式一定程度上延续传统拉祜族民居的形式并进行变化),最终实现结构效能与空间品质的同步提升,我们将平面修改如下:
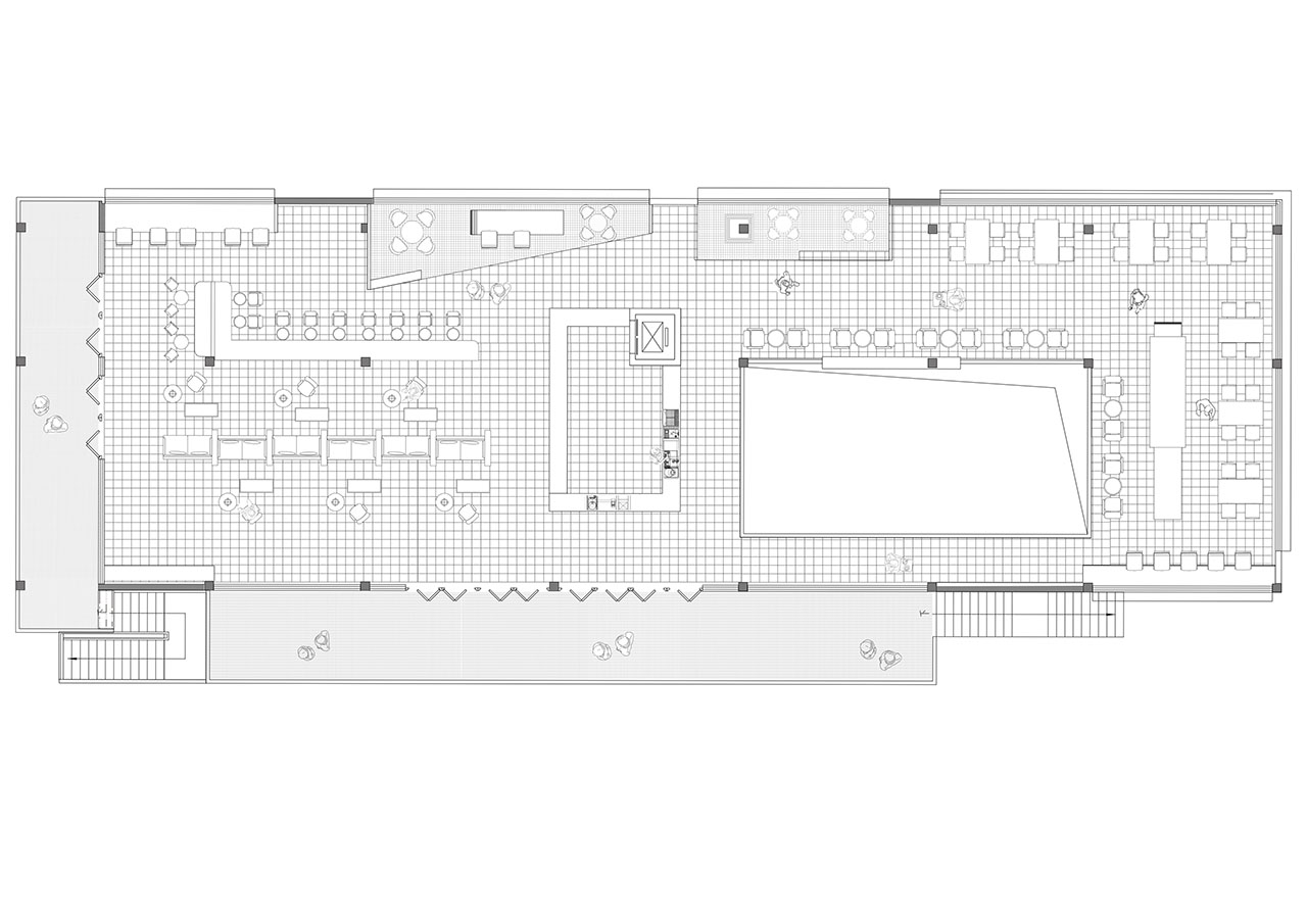
设计之前我们也对场地进行了深刻的思考,咖啡豆从种植和到烘焙出成品是一个漫长的过程,而一杯好的咖啡应该有让人陶醉其中的感觉。因此,我们以咖啡产业全生命周期为设计脉络,构建出沉浸式的空间叙事体系。首层通过半开放复合空间实现建筑与自然融合,可灵活承载主题展览、创意市集等功能,将局部作为咖啡研学使用的室内空间,而中庭的通高空间与二层有功能的联系和空间的体验。二层通过双景观露台构建产业对话,一侧朝向厂区和种植区,一侧朝向进村主路和村落,可通过两侧的室外楼梯到达,室内空间采用柔性隔断设计,通过不同的桌椅形式分割成多样的体验空间。
在建筑的二层,是访客在整个场地游览一圈之后的歇脚点,我们可以从多角度感受这个村落的历史背景,点一杯咖啡细细品味,在品味咖啡的同时一侧可以俯看整个工厂厂区,另一侧能看到村子各个角落。
主立面作为在大路上就能看到的展示面,我们希望让他既能和新厂房统一,又需要对村落原有的建筑进行呼应,因此在材料使用上局部采用常见的红砖,所有的金属面都采用银白色,而竖向交通流线的用一条镜面点缀,反射建筑前的村落与自然环境,消解新旧对立的同时让新建的建筑与环境产生对话。
一层的研学空间四周采用全落地玻璃,可根据活动功能需要来开启或关闭,开启时形成室内外贯通的教育复合空间,实现研学活动与户外场地的功能互动,并在一定程度上预留灵活性可满足不同形式的活动开展(市集、表演等)。
二层主立面室外露台远眺村落风景,纵向贯通历史建筑群轮廓,横向串联生活场景片段,细细感受村落文化和生活气息。
结合天窗设置了沙发和卡座区,丰富不同的体验空间的同时也让人有闲适,惬意的感受。
改新村咖啡研学中心是乡村振兴中产业与空间融合的创新实践,通过建筑空间与生产场景的有机互动,搭建起城乡文化交流的实体平台,用全景玻璃界面、灵活隔断和互动体验路线,将咖啡生产流程转化为沉浸式教育场景。设计中通过红砖与镜面的材料对话,以及生产展示与村落景观的视线渗透,在保留乡土记忆的同时构建起城乡文化交流平台,为乡村产业升级提供了可复制的空间转型样本,让曾经无人问津的古村焕发生机。
项目名称:乡村振兴咖旅庄园研学中心
业态规划:上海乡村笔记教育科技有限公司
设计单位:华建集团建筑装饰环境设计研究院,平介设计
施工图设计:云南玖星建筑勘察设计有限公司
建筑面积:2000㎡
项目设计&完成年份:2023,10;2024,05
设计团队:
平介设计:李宗键,王蕴伟,田欣怡
苏州大学:杨楠,肖湘东
业主:澜沧县东回镇改新村,上海乡村笔记教育科技有限公司
项目地点:云南省普洱市澜沧县东回镇改新村
摄影版权:王一翔

尌林建筑设计事务所

尌林建筑设计事务所

严旸建筑设计工作室

在行建筑设计

罗宇杰工作室

相南建筑事务所

小写建筑事务所

DnA建筑事务所

米思建筑

平介设计

小隐建筑

小隐建筑

三文建筑 – 何崴工作室

VODA设计工作室

随坪一里建筑设计

偏远建筑工作室

有点建筑

MAT超级建筑事务所

礽建筑

晓设计

偲所设计工作室

UDG有关工作室

之行建筑事务所

DnA建筑事务所

DnA建筑事务所

DnA建筑事务所

gad · Line+ Studio

罗宇杰工作室

间筑设计

在行建筑设计

地方工作室

华都建筑

亘建筑事务所