设计加:顶端设计
摆岁Bersure博物馆海景酒店
福建 收集
 

光之所在,工业遗产的诗意新生。

在福建霞浦——这座以蜿蜒海岸线、闪耀滩涂和“光影之城”美誉而闻名的半岛上,一座承载渔村工业记忆的建筑重获新生。由我们主导设计的摆岁Bersure博物馆酒店项目,将旧三沙芭蕾舞厂改造为海滨博物馆酒店。项目坐落于东壁海岸的红砂岩悬崖之上,不仅深度激活了闽南渔村的集体记忆,更在过往与当下之间,建立了深刻的叙事连续性。

 

正如这些历史影像所记录的,建筑外部是项目历史根源最直观的表达。我们精心保留了原建筑中很多有趣的原始片段,并将新的设计语言牢牢锚定在其工业根基之中。壁柱和窗户的序列,清晰地勾勒出工厂原有的体量与结构秩序。然而,设计并非简单的复制,而是以巧妙地引入新的开口和雕塑般的空洞作为现代的对位元素。最终呈现出一个既熟悉又焕然一新的w外观,成为霞浦不断变迁的景观中延续性与集体记忆的物质见证,宛如一座“发光的悬崖”矗立于海岸。

 

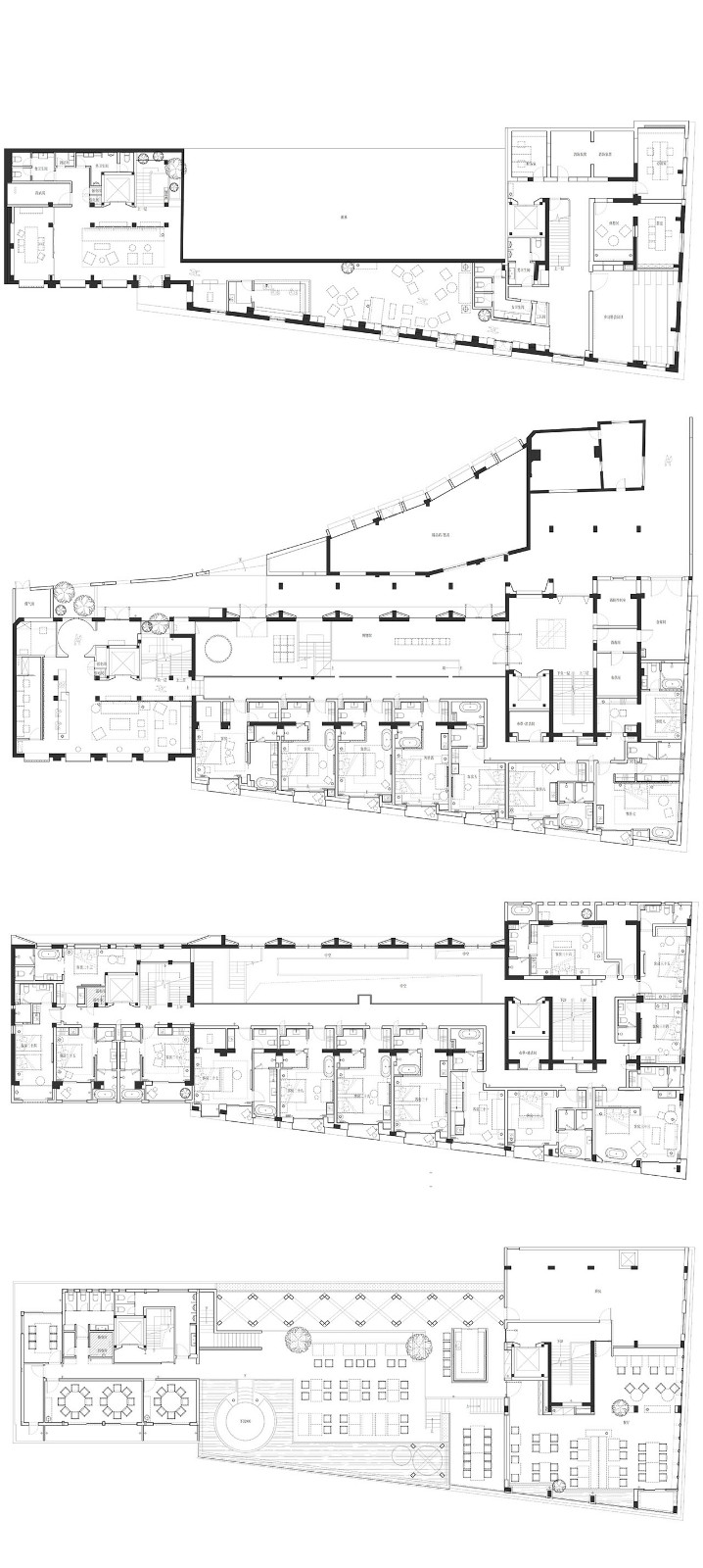
步入建筑的心脏,戏剧性的空间扑面而来。与业主深入沟通后,我们一致希望除了住宿,还可以承载更多的内容和故事,所以后面决定做一个三沙微型博物馆,并明确将博物馆和客房区域分开,基于这一共识,在设计上我们把四层楼板局部拆除,构建出四层通高宏伟气势的空间,将原楼板与粗犷而有力的混凝土结构自然面保留,如同暴露的骨骼,构成了这座博物馆核心空间的震撼骨架。暴露的结构瞬间将人拉回建筑的工业过往,奠定了雄浑而真实的空间基调,也正是这种坚实厚重的工业背景,为后续融入的有机元素与在地文化提供了强大的支撑。

 

这些设计选择不仅出于美学考虑,更源于对当地传统与可持续性理念的深刻尊重。通过精心的架空结构,轻盈的当代构筑物仿佛悬浮于厚重的历史基底之上,新旧空间形成微妙的视觉脱离,在对话与并置中,共同诉说着这片场所的过去与新生。

 

我们提炼了闽南三沙渔民文化的精髓,将“竹”元素以艺术化的编织语言融入空间,其灵动的形态隐喻着三沙渔民渔网的意象,以虚实结合的方式,静默致敬着这座海带紫菜之乡的悠久劳作传统。中庭的灵魂在用约50,000条竹片覆于其上编织的“渔网”,所有竹子均取自闽南本地,不仅因其可持续性和高抗拉强度,更因其能塑造出独一无二、充满生命力的有机肌理。竹子的柔韧性使其易于编织,创造出丰富流动的纹理,如同立体的书法虚实表达。这些竹帘环绕访客,散发着自然温暖与手工艺的智慧,与冷峻的混凝土骨架形成动人对比,在历史框架内注入勃勃生机。我们借助这些元素,旨在让客人“在寻觅独特设计的同时欣赏展品”。漫步于公共走廊,宛如穿行于当代艺术装置之中。

 

酒店的接待大堂,我们将其精心打造成一条通透、光线充盈的流动通道。整面的落地玻璃窗模糊了内与外的界限,开放的视野将内部休息区与壮阔的远海相连,邀请充沛的日光与清新的海风自由穿行。走廊沿途巧妙嵌入了私密的观景壁龛,为客人提供可驻足沉思、静赏海港风光的诗意角落。

 

当然空间不止于此。

曾作为仓库的负一层,如今蜕变为酒店客房的第二客厅,一个专为入住客人打造的、更私密与放松的休闲停留空间。改造中我们铲除了原有的墙面,却刻意保留了其独特的岁月肌理。这里备有茶空间,书,及多功能会议室,并通过巧妙设置的镜面拉伸天花,将户外的大树与婆娑的树影邀请入室内——风起时,光影在斑驳的墙面上流动,描摹着风的轮廓;风静时,是你我在此品茗的静心恬淡时分。这些细节将现代室内空间根植于当地传说中,以文化的肌理丰富了客人的体验,让人沉浸其中,憧憬着关于海边生活的一切美好。

 

在地面铺陈上,我们融入闽南文化精髓的红色地砖,或保留原厂历史痕迹进行修复,或重组为记忆拼图,或铺就新制传统纹样,无声地诉说着这片场地的文脉。裸露的钢梁与悬浮展示的老构件碎片清晰可见——既是对原厂房工业遗存的致敬,又创造出一种虚实相映、过去与现在从容对话的独特空间体验。

 

在垂直动线上,我们保留了原有楼梯,设计师Josh亲自示范了表面肌理的处理方式,确保在保留这份厚重历史感的同时,契合当代的安全与审美。温暖而富有层次的灯光从高处洒下,轻柔地洗过粗糙的墙面,激活了挑高空间。光与影在起伏的肌理上舞蹈,极大地强化了空间的雕塑感,揭示其岁月包浆,也让每一次上下穿梭都成为一场触及历史的感官之旅。

 

登上顶楼,您会发现位于四层的海景餐厅,既可享用美食,也可凭栏远眺。屋顶餐厅名为“无尽日落”,充分利用了其全景视野:整面的落地窗可让您从日出到日落,以180度无死角地饱览大海。在这里,宾客可以欣赏清晨柔和的阳光洒落海面,眺望渔船静静地驶向远方的动人画面。

 

客人们坐在餐厅光滑弯曲的石拱门下,着直面美丽的海景。宽大的窗户将海景尽收眼底,也让室内充满自然光线。在此,宾客可以欣赏日出日落的更迭,享受大海的宁静与美丽。

 

露台的照片清晰捕捉到建筑的精妙构思:挑檐与藤架的布局,精准顺应海岸的日照轨迹,在四季更迭中优雅地过滤光线。 材料调色板凝结着在地智慧——闽南质朴的红砖、做旧的金属、温暖的木材、竹编遮阳与当地的石材——将项目的叙事悄然延续至屋顶。露台墙面上,我们利用原建筑预留下的红瓦片作为围墙装饰,上面还保留的老厂房瓦片仍镌刻着“霞浦磚瓦廠”的字样,它们与质感丰富的自然饰面一同,在广阔的露台空间中,将天空与水景温柔相融,静静地诉说着时光的故事。

 

 

对于那些厌倦了城市喧嚣的人来说,这里正是一处能够真正放慢脚步的地方。你可以欣赏阳光洒在泥滩上,聆听宁静岛屿周围轻柔的海浪声,感受清新的海风拂过脸庞。从宁静的海岸漫步到静谧的日落,这里的每一刻都会让你感到宁静与安逸。

 

环绕中央中庭的是29间客房,每间都设计成开放、通透的阁楼式空间。宽敞的玻璃窗引入滩涂和海洋的无遮挡景色,使大海仿佛成为房间的自然延伸。海景房位于较高楼层,设有落地窗以提供极致的视野,高达4米的天花板让人联想到传统崖边民居的空间尺度,而室内则采用精致、简约的色调。

 

客房内部肌理漆墙面、家具和温暖的台灯共同诠释了侘寂美学。这种克制——避免过度精致或过多装饰——让原始质感和自然光成为主角。柔和的客房、沙质般的饰面以及不事张扬的风格,引导客人关注光影的变化和材料的本真品质,而非装饰本身。

 

正如这组光影定格所揭示,Bersure霞浦摆岁酒店生动演绎了工业遗产的重生。设计师坚定保留了旧鞋厂厚重的混凝土与红砖骨骼,并以本地材料、精湛工艺和深刻的地域文化叙事,赋予其全新的灵魂与诗意,在粗犷的历史肌理与现代的宁静栖居之间建立了流畅而深刻的延续性。

 

从致敬工业秩序的外立面,到竹艺编织的震撼;从沐浴海光的公共区域,到坐拥“无尽日落”的屋顶;直至简约宁静的海景客房——每个空间都邀请客人冥想光影,静观潮汐,感受四季流转。这里,建筑本身化作了一首关于光、海与记忆的可见诗篇。

 

项目名称:摆岁Bersure博物馆海景酒店

项目类型:建筑改造/室内设计/陈设设计

项目地点:中国 福建 霞浦

建设时间(起迄年月):2024

建筑面积(平方米):室内5000㎡

设计单位:蜚声设计

主创设计师:文志刚、李诗琪

设计团队完整名单:向维方、张文堯、肖作辉、田阳、胡建美、李炎、李军伟、刘露

材料:混凝土、肌理漆、红砖、竹编、石材

业主:福建林吾酒三文旅发展有限公司

摄影师欧阳云-隐象建筑摄影 

推荐

杭州曲水兰亭度假酒店

北京对角线设计

以自然唤醒钝感\蜜悦·森屿秘境精品度假酒店

埂上设计

蜜悦深圳天麓秘野仙踪度假酒店

埂上设计

造房子.与自然共生\关子门·烟岚旅居文旅精品酒店

柒合設計

陶唐之丘度假酒店

三文建筑 – 何崴工作室

流云乡墅

木君建筑与室内设计事务所

重庆拾山房

悦集建筑设计事务所

珍珑·青石子度假庄园

植岩建筑计

《流水望月》-大理青绿海景度假酒店

寻常设计事务所

《海的呼吸》-大理青绿半山酒店

寻常设计事务所

青普丽江白沙文化行馆

堤由匡建筑设计工作室

山也HILLS酒店

JK DESIGN STUDIO

飞蔦集·黄河

STUDIO QI 建筑事务所

美岕山野温泉度假村

荷兰AZ国际建筑事务所

千山云舍三峡木屋酒店

先进建筑实验室

响沙湾莲花酒店

PLAT ASIA

春风十里小镇帐篷酒店

寰廷建筑工程设计

木守西溪酒店

goa大象设计

深圳大梅沙京基洲际行政俱乐部

香港郑中设计事务所

璞驿酒店

怡境国际设计集团

阿丽拉阳朔糖舍酒店

直向建筑

长白山河谷林居

原地建筑

木屋酒店

休耕建筑

安徽齐云山树屋

相南建筑事务所

可见泽栖帐篷艺术酒店

捷仕建筑

建德富春开元芳草地乡村酒店

中国美术学院风景建筑设计研究院

不是居·林 | 疗愈系度假酒店

陶磊建筑事务所

火山里·到达者酒店

PLAT ASIA

苫也礼堂·山海之间,与精神对望

蜚声设计

院中寻院 - 安徽泾县茂林镇旧村落改造项目

REDe Architects

山西吕梁桃李芬芳度假酒店-窑洞新生

REDe Architects

森泊乐园 · 林间之巢

动奇屋

阿那亚NOA RESORT 诺岸远近酒店

宽品设计顾问

HIGH FIVE运动度假酒店

泛域设计

大乐之野·黄龙岛灯塔酒店

万境设计

大乐之野嵊泗黄龙岛灯塔酒店

实在建筑

子兮如斯文化行馆度假酒店

GWP源尚建筑

苏州狮山悦榕庄及悦椿酒店:隐筑于园

goa大象设计

格力珠海东澳岛阿丽拉

泽碧克建筑设计事务所

荒野之家#133#-风帆之家

个个世界

松境度假庄园

八荒设计

中旅阿那亚九龙湖·YIN HOTELS

PLAT ASIA

湘湖自由庄园:在30米高差间顺势生长

goa大象设计

《苍洱之眼》大理风雅颂度假酒店改造

寻常设计事务所

安莱雨林野奢度假酒店:生于自然,和野而栖

方糖空间设计顾问

东山大观 - 在遗址边上建了一个度假酒店

轩荣设计

南京汤山涵田·悦酒店

天华建筑设计

不远太行酒店

回响设计

丹棱老峨山居度假酒店

門口建筑工作室

上海曲水兰亭 - 度假新境

北京对角线设计

武汉曲水兰亭度假酒店

北京对角线设计

三禾- 稻里温泉度假酒店

hia高地设计

漂浮酒店

超越工作室

ARVO 16:30酒店 - 接住光影草木的城堡

大料建筑

璞宿酒店:涠洲岛的疗愈绿洲

方糖空间设计顾问

鄂尔多斯迹外 · 芃酒店

LEL DESIGN STUDIO

叙旧·山海事——探寻“住”的意义

易禾上品设计

泸沽湖亭苑精品酒店

Atelier8

陌领融郡精品度假酒店

逸伦联创国际

晚霁海景酒店

易禾上品设计

宜兴雅达溪山酒店:方寸溪山

goa大象设计

弥勒东风韵美憬阁精选酒店

怡成建筑设计

安溪·悦泉行馆

天诺国际

The Pond艺术酒店

LAD(里德)设计事务所

设计放心选,监督有保障
  • 更好设计

    这里汇聚顶端、前沿的设计团队与项目创意

  • 更多选择

    这里聚合更多国内外、全产业的服务与产品

  • 全面配套

    可需求发布、招标竞赛、咨询管理配套服务

  • 管控保障

    针对服务产品全程监督管控与质量跟踪评价

上设计加网,实现精益营销
  • 高质展示

    入驻企业专站在市场门户高质的展示传播

  • 精准客群

    几千团队、海量设计师、优质需求与客群

  • 全面营销

    企业推广、合作、招聘、企宣等一站到位

  • 顶层发展

    这里汇聚设计产业供需的顶端圈层共发展