Klättermusen(攀山鼠)是1975年诞生于瑞典的户外运动品牌,以“极致性能”、“自然环保”和“山系美学”为核心理念,产品灵活应用于各种户外场景。
设计没有掩盖岁月痕迹,而是凸显自然与人文的历史进程。通过模糊零售、空间、及文化间的界线,在具有时代感的材料和现代元素之间展开丰富对话,打造具有实验性的城市限定旗舰店。
新零售的空间“渗透”
旗舰店于深圳核心商圈启幕,位于商区人流交汇处。为了体现“城市渗透性”理念,我们搭建外摆区域,模糊室内与室外的空间边界,建立门店与城市和人的紧密联结。
我们利用回收木材错落组合成不同高度的座椅,结合景观绿植,将外摆区域营造成林中露营的户外场景。
外摆区为商区行人提供可稍作停歇的休憩场所,是门店和品牌体验的室外延伸;同时也将户外行人的注意力引向室内空间,成为橱窗展示的一部分。
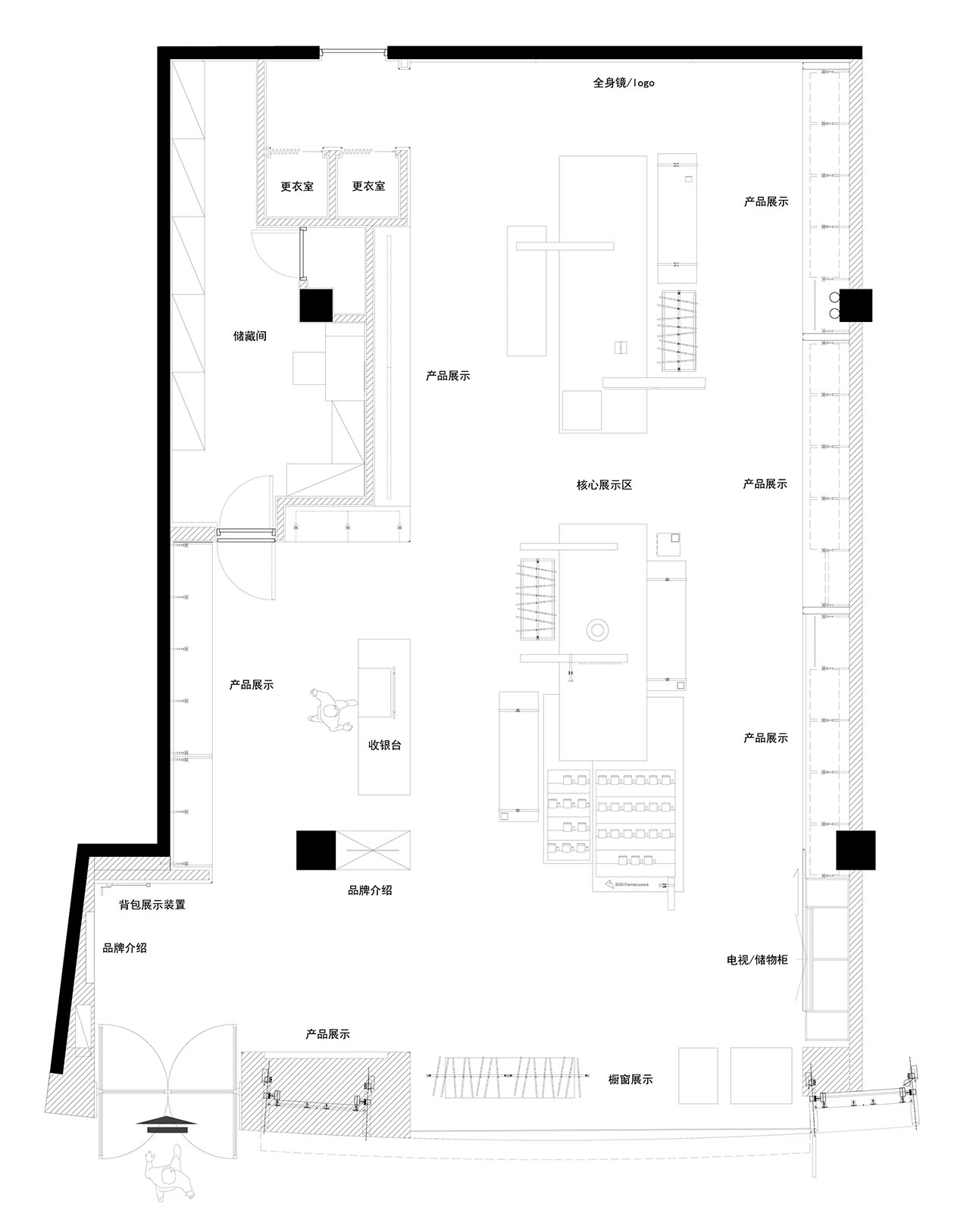
核心展示中岛
核心展示区由两个独立的道具单元组合而成,包含衣架、展示台、休息座椅等元素,通过不同使用模式创造多样场景。核心展示中岛位于空间中轴线上,贯穿橱窗展示、活动区及展示区。
道具通过推、拉呈现聚拢、展开两种形态,应用于产品展示或品牌活动等使用场景。台面展开时为“展示模式”,日常摆放产品面料;台面聚拢时为“活动模式”,为举办活动预留空间。
墙面推拉面板暗藏屏幕及收纳柜,用于存放定制桦木海洋板彩色坐凳。
中岛道具由彩色桦木海洋板拼接、组合而成。木板表面纹理形状如同海面波浪,展示台面及道具侧面呼应品牌丰富的色彩搭配,经过工艺打磨的原始材质体现了自然的户外感。
品牌文化与城市精神
我们在品牌文化与城市精神之间寻找平衡,创造体现当地语境的商业空间。室内大量运用沙石、贝类等源自当地的自然材料,并将品牌元素表现在细节之中。
门店入口设置品牌历史墙与可升降挂包架装置,介绍品牌发展历史及产品理念。展示背板由沙石、贝壳和回收弃物组成,并按地质分层的形式叠置。
我们利用回收渔网悬挂品牌产品,与深圳本地文化及日常生活相融,唤起深圳旧时渔村的时代记忆。同时将网边的细节设计与背包产品元素相呼应。
橱窗展示道具由红砖、工字钢、木栈板、帆布等城建废弃物组成,践行品牌环保理念。城市建设废品再利用的设计策略,超越了可持续发展的自然保护层面,更是一种集体记忆的守护,折射出城市的飞速发展。
试衣间延用桦木海洋板作为隔断饰面,传统布帘由帐篷帆布代替,营造身处户外的氛围感。墙面转角利用登山绳做细节处理,增强设计感和品牌记忆。
试衣间旁是整面通高镜面,便于顾客选品、试穿的同时无限延伸室内空间。
我们选用贝壳水磨石、真石漆、桦木海洋板等代表深圳本地文化和日常生活的材料组合来搭建新的空间语言、更新品牌标识。我们希望设计不止于表面装饰,更为顾客提供探索空间乐趣的购物体验。
Klättermusen(攀山鼠)深圳店不再是单纯的商业零售,而是充满活力、体现城市精神与文化脉动的公共空间。当设计语言与城市基因产生共鸣,便会孕育出更深层次的空间理念,重塑地域自然肌理、历史沉积与社会意义。
项目名称:Klättermusen(攀山鼠)深圳旗舰店
项目类别:零售空间设计
地点:深圳,广东
面积:178㎡
设计公司:odd设计事务所
设计团队:出口勉,冈本庆三,邸俊巍、李恒
竣工时间:2025.02
主要材料:桦木海洋板、贝壳水磨石、真石漆、再生砖、金属、银镜、实木
摄影:锐景摄影

好典空间设计

恺慕建筑设计

JANG studio

芒果建筑设计

好典空间设计

苏州无外设计事务所

杭州水丁集设计事务所

一間白设计事务所

好典空间设计

间筑设计

睿璞设计事务所

W SELECT DESIGN

Some Thoughts空间设计

巢羽建筑设计事务所

异向计合生活方式设计研究所

Super Fan Interior Design

Super Fan Interior Design

深圳超级平常设计

Say Architects

山地土壤室内设计

芝作室

加减智库设计事务所

of gaaarden

有寻建筑设计事务所

西涛设计工作室

东仓建设

东仓建设

Kokaistudios

叶梹室内设计

联图建筑设计

肯斯尼恩设计

CUN寸DESIGN

睿集设计

治木设计

芝作室

如恩设计研究室

Francesc Rifé Studio

叶梹室内设计

帕姆建筑

B.L.U.E.建筑设计事务所

杜兹设计

图蓝空间设计

Studio 10

栋栖设计

iZ Design Studio

东仓建设

of gaaarden

罗宇杰工作室

予野设计

苏格SG空间设计事务所

尚洋艺术

治木设计

杭州水丁集设计事务所

未来以北工作室

多么工作室

ICD明之顾问

Studio Profile

立品设计

多么工作室

泛域设计

waa未觉建筑

東木筑造设计事务所