我为什么把冰山装进上海新天地最高楼顶层
“已经形成了习惯的是,我们总是忘记我们与大自然有着极深的关系”
---《逐冰之旅》
Wutopia Lab受邀在太平洋新天地T1塔冠250米的高度设计一个黄浦区地标城市观光厅,并于2025年10月落成开放。
那么设计任务是什么?
摩天楼观光厅已经成为现代城市旅游的重要一站。但单纯的登高面临摩天楼城市内卷竞争。所以业主要求发掘摩天楼地标的主题性、话题性和文化属性,希望观光厅从超高层的附庸逐渐变为一个城市景点,成为独立的文旅业态。
在新天地T1塔顶,可360度看到上海市中心所有年代的建筑,从一大会址到陆家嘴金融中心,从外滩到跨江3桥,从人民广场到虹桥,尽收眼底。作为上海核心地段的黄浦区的核心超高层就这样很自然承担了黄浦的城市宣言,它不仅拥有上海最重要的历史和当代,更要表达出未来的战略。
业主结合国家2060双碳目标作为未来的主题,把黄浦乃至上海的昨天、今天、明天组织在观光厅的流线中,要求加以充分表现而变成一个具有吸引力和象征性的城市文旅景区。
让我们造一座上海250米高处的冰山吧
Place is Perception 场所即感知
任务书的文字需要转化成空间形式。大陆冰盖冰川学科学家通过观察格陵兰冰盖的变化而注意到气候变暖的趋势,于是冰川成为全球气候变暖的精确指示器。
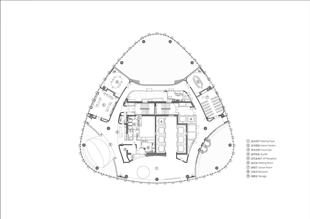
我决定把设计范围的55、56层和屋顶57、58层完整设计成一个抽象过的冰山。以57层屋顶为有浮冰的海面是户外主观光层,57层以上机房到58层直升机救援平台为露在海面上的冰山。55、56层塔顶室内涵盖序厅、观光厅、展览厅、下午茶咖啡厅、大会议室、空中花园和会议室,以及休息厅为海面下的冰山。把功能空间设计成冰山的山洞,用统一提炼过的拱形元素加以连续控制而创造了一种可以感知的熟悉的陌生感,当略微对观众解释,就可以达到恍然大悟的共识。观光厅这类熟悉但没有形式共识的场所就可以被感知和理解。
于是,冰山就是这样被放进了上海新天地T1塔冠。
Form is Function 形式即功能
当塔冠内部成为冰山和山洞的时候,空间就和外立面没有关系了,它和外立面这类居民游客熟视无睹的玻璃幕墙大楼的差异感越强,所产生的戏剧性张力就越大,而游客的情绪价值赋予也就越大。情绪价值也是功能,建筑师以连续白色的拱形把小展厅、小会议室和休息厅等小尺度空间为主的56层完整表达成连续的冰山山洞空间,从而达成塔冠冰山的第一步。这样形式就是功能。
Ornament is Opinion 装饰即观点
55层具有两层通高的观光咖啡厅和大会议室。采用56层的白色拱顶不仅单调,而且更为复杂的音箱、广播、摄像头、消防喷淋、烟感、灯具以及风口也会破坏连续拱顶的纯粹。我突然有了一个大胆的想法,我为什么不用计算机技术把这些大大小小的洞口和设备整合在一个完整的花纹里面呢?由冰联系到雪花,最后以六瓣雪花的造型为基础形成了1100块草叶穿孔纹阳极氧化铝板,把所有设备组织成连续巨大的天花板花纹。
但这个很不建筑,我有些忐忑。毕竟“装饰是罪恶”仿佛思想钢印打在建筑师脑子里。我观察了太太和身边的女同事,问了她们相似的问题,你们为什么要戴一些首饰,哪怕很简单。最后的回答归结成一句话就是:这些是她们这天的态度。显然,装饰不是罪恶。装饰是一种态度,甚至可以延申到一种观点。
我在研究上海Art Deco历史中看到了这种装饰态度。这种把传统纹样融入代表未来的Art Deco的建筑中,恰恰正是上海人的一种审美态度。
就此,我不再有负罪感甚至由此发现了我的新的探索之路,我不需要成为一个纯粹的现代主义建筑师,我本来就不是。我可以成为上海Deco的第一个建筑师。这1100块六瓣雪花就是上海Deco的第一个实践,也是达成塔冠冰山第二步。
Duality is Dynamics 对偶即动态
在55层有一个120平、高度25米且顶部开放的户外空间。对偶帮助我以“冰山”为上句,创造出下句“绿心”,我决定把它设计成一个绿色花园。也是对偶触动我放弃一个类似上海中心复制一个传统园林的思路,而是先解构一个传统园林(致敬黄浦东南第一园-豫园),然后以立体的方式重新组合成一个新的悬浮的空中花园。在25米的高度上,建筑师和景观师设计了不同高度的波纹不锈钢包裹底部的浮岛花园,从55层观光电梯到57层就是穿越一个立体花园。而每一层浮岛花园最后投影在55层这块120平米的模拟水面的黑色水磨石和金属涟漪的地坪上,会有超过100%的绿地。不锈钢月门和3D打印的太湖石(致敬玉玲珑)是这个重构未名的中国园林在视觉上的历史和当代对偶成双。
这似乎不是构建塔冠冰山的步骤,但是冰山里面那颗不可或缺的常绿之心。
Vision is Vanguard 愿景即远见
在56层和55层上空之间,建筑师结合连续拱形曲线构建了两个巨大的“眼睛”把两者联系起来。在56层的金色之眼可以越过55层咖啡观光厅的环形大屏幕看到欣欣向荣的上海城市。而在另外一个眼睛可以穿过悬浮花园看到新天地太平湖以及一大会址。上海就是在富有远见的眼界里飞速成长的奇迹。这一双慧眼是造山的番外。
Material is Mood 材料即情绪
在57层屋顶的水磨石白色“海面”上,联合上海市工艺美术大师施君把屋面设备电梯机房打造成抽象的琉璃冰山。半透明的琉璃在视觉上接近冰块而直接点题冰山。在这个冰山山壁后面,联合欧普照明以LED灯管形成两种表达,一个是整体颜色的变化,冰山可以变成彩山;一个是能创造出一幅隐约的关于长江的画卷。这冰山通过琉璃这种材料的转化而在情绪上回到上海,更是达成塔冠冰山的第三步。
Architecture is Affect 建筑即情感
沿着57层的楼梯,可以进入冰山拾阶而上到58层,本楼的巅峰。这是一个用光伏发电板制作的,兼顾直升飞机悬停救援的,以及可以作为秀场的蚀刻24节气的巨大日晷。它说明了技术具有可以转化成戏剧性空间表达的能力,是达成塔冠冰山的最后一步。就此我们把冰山顺利地装进了新天地T1楼顶。当你站在日晷中央,微微有风,阳光有点灼热,你会觉得这个时刻,自己和世界融为一体,一切都是值得的。
尾声:所有过去皆为序曲
Existence is Event 存在即事件
所有梦想都需要一个可以执行的计划。新天地观光厅是个冰山,但其实也是一个城市的微型景区,它综合公共观光以及团体用户需求,提供各种文化、商业、娱乐、展览、艺术、会议以及生活场景。它是一个丰富的城市生活目的地,也是一个文化教育目的地,它更能激发我们打破日常成见的勇气。我在最后一次巡场,站在大舞台中央,在雪花的覆盖下面对上海,突然内立面上的LED立柱绽放出华丽的景象和上海城市图景交织成一幅更魔幻现实主义的艺术作品时,一切艰难的工作和思考在最后都表现出一种不可思议的轻松。
Space is Spirit 空间即精神
我自己最喜欢56层的休息厅。连续的拱廊在立面剪出了一道新的城市图景,上海如水晶般在拱门后闪闪发光。我站在黑色但发亮的地坪上会暂时空白,这个空间因为这个空白而具有了一种即时的神圣性。
Shanghai is Sophistication 上海即精致
这是一个温情的冰山,有分寸表达了上海人一种复杂的优雅。首先是实用主义,把塔冠办公变成对公共开放的楼顶经济。其实是理性主义,所有戏剧性都要基于财务平衡。再次是乐观主义,要在有些局促的楼顶展现出足够宽阔的视界。最后是浪漫主义,所有这些严肃的思考和计量,最后以一个不可思议的象征,戏剧性地呈现出来而表达出上海人内心终极地对世界、家乡和人的浪漫。
“所有这些过程都是可逆的。如果每个人都能努力只做一件事,减少他们的碳足迹。少消耗,想想我们需要什么,我们真正想要什么。”---《冰冻星球》
项目名称:太平洋新天地观光厅
项目地址:吉安路111号太平洋新天地T1塔楼55F-57F
委托方:上海瑞永景房地产开发有限公司
建设面积:5300㎡
建筑材料:铝板,玻璃,水磨石等
设计时间:2022年11月-2024年5月
建设时间:2024年7月-2025年4月
设计公司:Wutopia Lab
主持建筑师:俞挺
项目经理:戴欣旸
项建筑师:葛俊,戴欣旸
设计团队:邹军津 孙易文 陈正强 徐婉琳 安英杰
方案深化团队:戴云峰 崔销销 吴晓艳 秦丽艳 赵如意
吊顶参数化设计优化:程韦汀 许陈成 于子惠 周兴 徐子杰
景观设计:VIA维亚景观
景观团队:孙轶家 周密 吴严 全帅群 马丽
照明顾问:张宸露,尉诗羽
策展顾问:LUMINATORS 上海律弥文化艺术发展有限公司
策展团队: 安娜 何佩莲 谭昉莹 许晋恺 朱晓舟 张洋
Logo设计:花生联盟
Logo设计团队:陆亚昕 吴嗣光 孙浩 张兴宇
室内施工图设计:央川装饰工程设计(上海)有限公司
设计团队: 潘小川 梁文武 徐智斌 陈瑾妍 王春燕 刘传洲 史志鹏 孙伟
景观施工图设计:上海天华建筑设计有限公司
设计团队:曹鑫 肖万全 郑钰丝 韩金平
地块建筑方案设计:Kohn Pedersen Fox Associates
地块施工设计图:华东建筑设计研究院
软装设计:大宛设计
设计团队:佘宛婷
施工单位:上海保杰创新建设集团有限公司
团队人员:李朝阳 吴建 洪信 阳志强 史从辉
摄影:CreatAR Images

上海问和答

隹聿设计工作室

间筑设计

里与外设计

翡梧创意设计

白菜设计

风合睦晨空间设计

PIG DESIGN

介景建筑

苏格SG空间设计事务所

大犬建筑

白菜设计

共生形态设计

加减智库设计事务所

共生形态设计

OAOA Studio

MOC DESIGN OFFICE

几言设计研究室

壹舍室内设计

零几建筑事务所

金秋野建筑工作室

土木石建筑设计事务所

GENSLER

不自然空间环境设计

PILLS工作室

合舍工作室

白鹭设计

共生形态设计

中置华优设计

扩道建筑设计事务所

设计集人

善祥建筑设计

权洪建筑研究所

共生形态设计

MAT超级建筑事务所

艾克建筑设计

氹边建筑工作室

山地土壤室内设计

图盈拓新设计

Wutopia Lab

植田建筑室内设计

共生形态设计

深点设计PDD

拓维室内设计

堂晤设计

堂晤设计

拓维室内设计

星球建筑事务所

大犬建筑

锦禾设计机构

杭州观堂室内设计

Wutopia Lab

MAT超级建筑事务所

借光建筑空间设计

直径叙事设计

素造建筑

借光建筑空间设计

有物设计顾问

巢羽建筑设计事务所

月梁建筑设计

众舍设计事务所

汇乘建筑设计