01
项目背景
位于西安西北二环、占地300余亩的米禾农场,前身是汉长安城遗址内的李下壕村,2024年春天,改造后的米禾农场以“田园商业综合体”的微度假模式对外营业,樂班农场餐厅是首批入驻农场的餐饮品牌,也是樂班在西安以“农场餐厅”命名的首店。
樂班于2013年创立于西安,是一家倡导时尚健康生活方式的休闲餐饮连锁品牌,始终坚持着“传递健康,分享美好”的经营理念。品牌过往在西安和其他城市的门店均落位在城市成熟商圈,选址在米禾农场的樂班农场餐厅,是对当下不断变化的新消费需求,一次全新的探索与尝试。
02
核心理念
MOS木石设计与品牌合作多年,当我们第一次来到场地,面对着广阔的田野,品牌推崇有机、健康食物的理念与农场产生了天然地链接,设计只需顺势而为,将空间从“有形”到“无形”,我们希望人们来到这里,不仅是吃一顿饭,更是对田园生活的一种体验。于是,自然、土地、食材、农场的自给自足,构成了设计的核心理念。
受到设计委托的时候,餐厅所在建筑已经落成,位于米禾农场的入户位置,建筑内部呈柱网框架结构,门窗比例与建筑体量不匹配,造成采光较差,原场地有部分挑空和搭建,楼梯直达户外露台,MOS木石设计负责室内设计部分、建筑外立面和户外景观的改造。
03
农场叙事
基于从“有形”到“无形”的场地直觉,设计将门窗调整比例,以更加通透、开放的形式将空间“打开”,与周围的景观产生链接。
项目外立面使用了土黄色的真石漆,呼应田野大地的肌理和粗犷感,主入口以横长的木质折叠门引入开放视野,释放空间的烟火场景。步入室内,灰色涂料处理的墙面保留了斑驳的工业痕迹,与部分立面使用的加气块砖,产生质地的差异,丰富立面层次。
场地原本的梁、柱,由回收的老木板所覆盖,整体构建出线条的秩序感,老木板的颜色、肌理,经过时间沉淀,令人与农场木屋产生天然地联想,铺垫出田园叙事的基调。
同时,黑色钢板材质的门窗、楼梯扶手、护栏,呈现出锻造的工业技艺,空间部分墙面装有软木板,并将带有品牌元素的创意布艺、植物叶片、草帽等元素固定其上,与空间摆放的新鲜面包、食材、舒展的植物,共同营造出农场生活“自给自足”的手作温度。
这样一来,多元材质与天然物料的相互碰撞,展现了农场餐厅的丰富性与趣味性,可持续设计的理念也得到诠释。
04
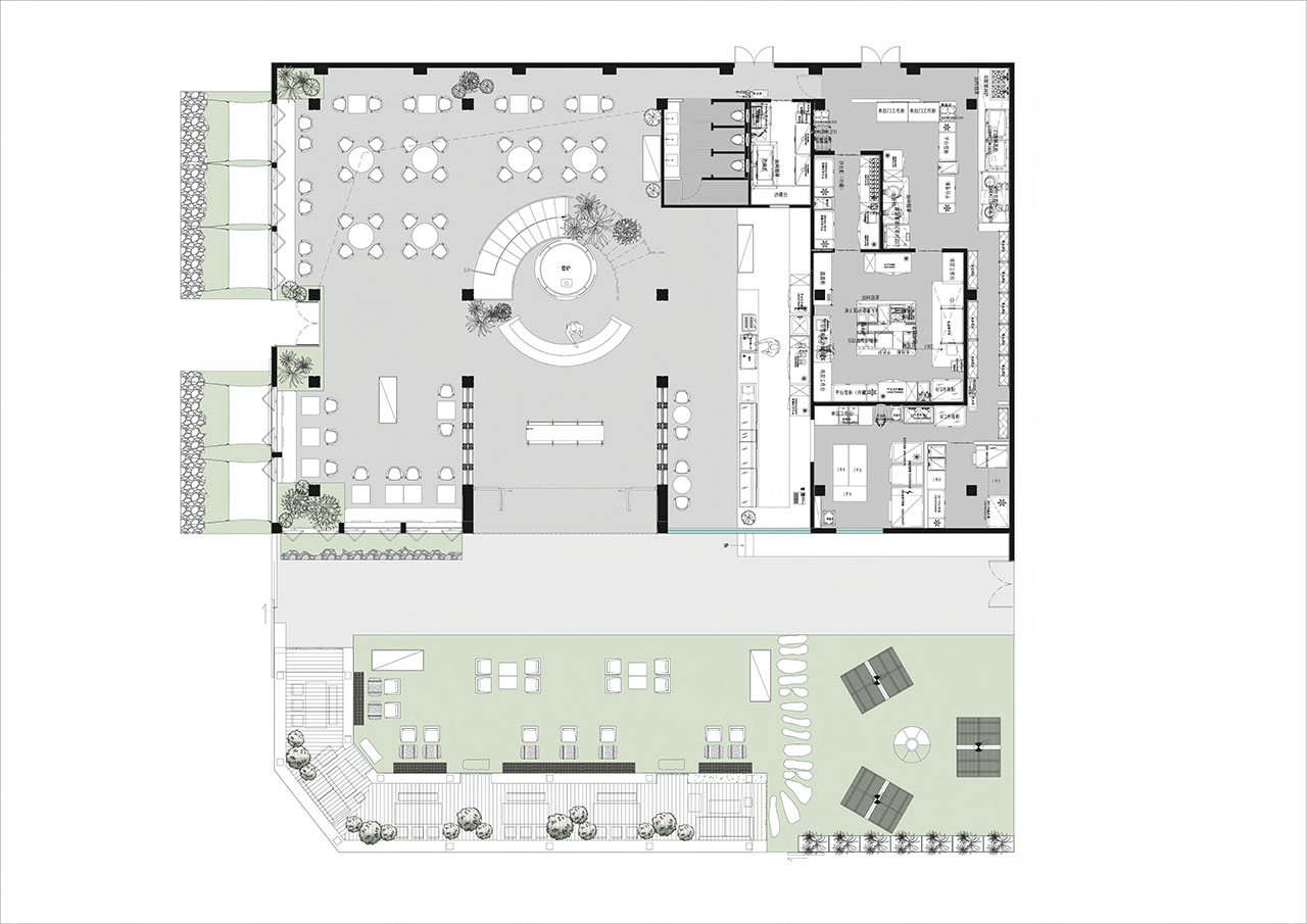
功能布局
在设计之初,考虑到米禾农场具备种植条件,我们提出“去餐厅化”的概念,即摒弃单一场景,打造“从农场到餐桌”的可游、可感、可食等多元体验。在传统就餐区和后厨区的布局规划基础上,增加了食材展示区、面包工坊和明档披萨炉。
入口两侧设置开放式展架,搭配可拆卸果木箱,实现季节性陈列转换;以空心砖砌筑并搭建木箱的模块化展台上,摆放着造型各异的手工面包。
面, , , 包工坊位于一层的东南角,即入口右侧,引导顾客自然关注,避免与餐厅经营产生动线重叠,面包工坊提供当日新鲜面包外带,通过建筑南侧立面的玻璃实现对外展示。
在一层中央区域,我们设置穹顶式明火披萨炉,以水泥砌筑的弧形操作台包裹,与相邻的旋转楼梯形成空间焦点,顾客沿楼梯上下穿行可360度观察披萨制作过程,强化"农场厨房"的仪式感,明火这种最原始的烹饪方式也会让果木和发酵小麦香气四溢,放大食物本真自然的味道。
一楼就餐区散落在餐厅的北侧和西南区域,我们将建筑西侧的部分隔墙打开,创造更通透的视野,傍晚时分,面向西边的远处麦田,可收获一场落日余晖。
二层露台位于建筑南侧,在遮蔽的屋檐下,设置了户外就餐区,坐在这里,可以全景俯瞰农场。此外,我们在露台搭建了玻璃斜坡屋顶,以增加室内使用面积,在二楼靠近东侧,有一个单独的包间,延续餐厅的设计语言,长条桌可供多人或者团体用餐。
05
结语
对樂班农场餐厅的设计实践,始于我们对农场型经济当代转型的持续思考,而更具启发意义的是,从餐厅投入经营的数据来看,证明了“农场叙事“的设计策略在餐饮空间中的商业潜力。由此,在后续与品牌的深度合作中,我们挖掘并提炼农场餐厅中有参考价值的部分,结合不同场地特质和商业定位,希望赋予品牌持续不断的商业活力。
项目名称:LEBAN蕽场餐厅
项目类型:室内设计/建筑改造
项目地址:陕西省西安市未央区李下壕商业街区米禾农场内
建筑面积:室内:900m /户外339m
设计方:陕西木石装饰设计工程有限公司
完成年份:2024年05月
设计团队:刘燕(主创设计师)、苏佳瑜、邱泽翔、薛佩涵
项目撰文:高婧
材料:水洗石、艺术涂料、阳光板、老木板、空心砖、香梨夹丝钢化玻璃、钢板
摄影版权:Kevin

杭州慢珊瑚设计

阿穆隆设计工作室

米思建筑

空间里

慕达建筑

PLAT ASIA

风合睦晨空间设计

异规设计

goa大象设计

平介设计

杭州观堂室内设计

达艺装饰

瑞兆明明室内设计咨询

阿穆隆设计工作室

素朴建筑工作室

安隆设计

大料建筑

度地建筑

杭州慢珊瑚设计

刘道华建筑设计事务所

方糖空间设计顾问

艾洛设计

八荒设计

天作空间设计

上海禾秣建筑设计事务所

PLAT ASIA

Projject

否格设计

天作空间设计

东仓建设

SWS Group

万华产品研发中心

炘儒空间设计

刘道华建筑设计事务所

退化建筑

平介设计

杭州壹方设计

平介设计

Z.H.D.I

米思建筑

风合睦晨空间设计