地块位于昆山高新区城郊,周围规划为工业园区,初到现场时,周围还是空地,西侧的小河连通南侧不远的吴淞江,它的下游就是苏州河,在上海外滩汇入黄浦江。
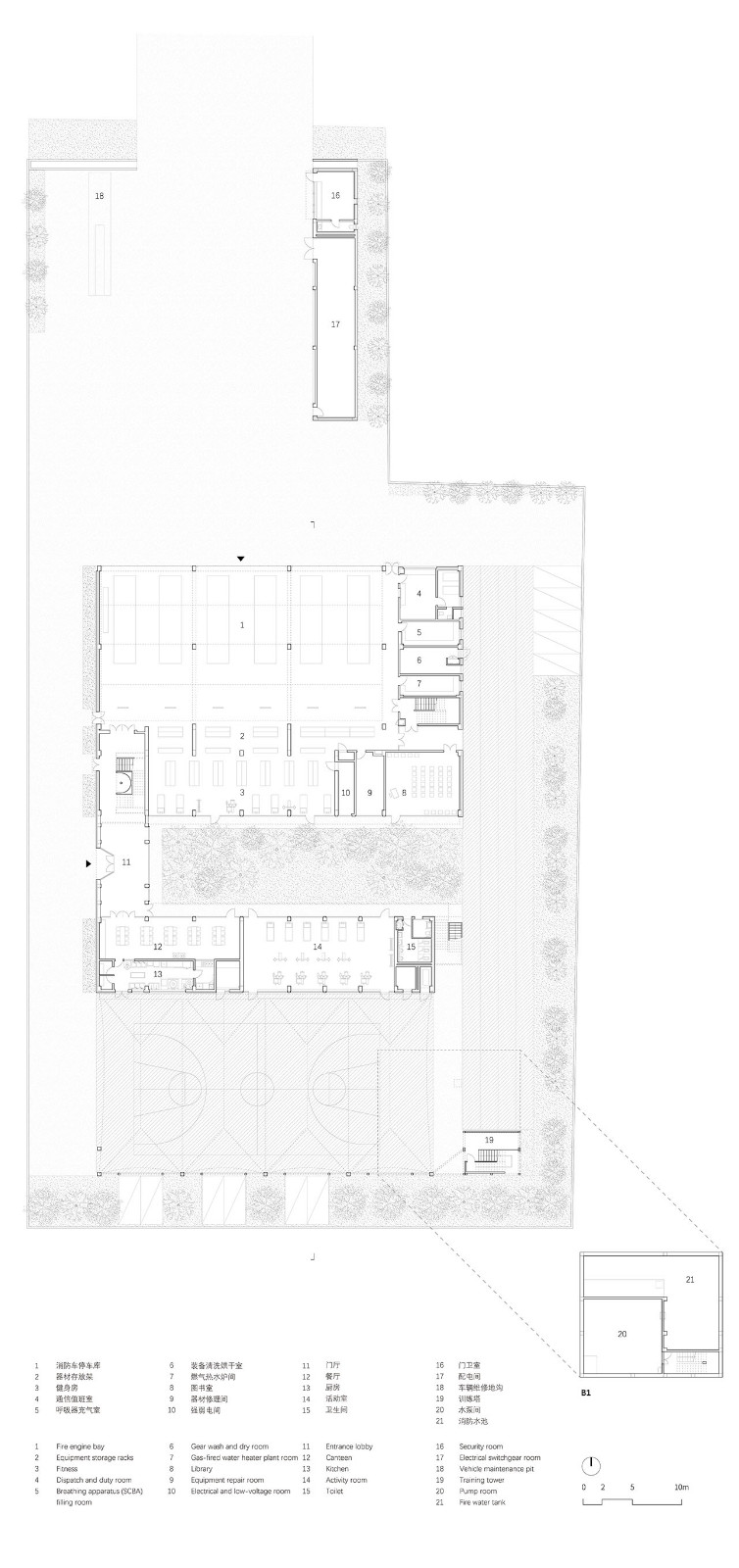
项目一开始并没有一份完整的任务书,我们先去了解了消防员的日常。消防员需要全天候驻留在消防站,出警只是工作的一部分。值班、等待、训练、吃饭、娱乐、休息……大部分时间是在站内度过。消防站通常只被当作一个高效的装置,但其实效率并不是唯一的问题,我们认为这个设计还有一个主题:作为一个容纳日常生活的地方,空间应该怎么组织,才不会让时间太难熬。讨论过程中,有一个硬性要求始终非常明确:从接到指令到到达消防车库,必须控制在两分钟之内。刚性的需求能让设计展开变得明确,设计的很多决定,都首先围绕着这个核心。
我们把消防车库当作整个建筑的核心,它既是出警的起点,也是整个建筑秩序的中心。它被设计成一个类似厂房的空间,柱、梁、板,一层一层往上叠加,构成一个结构逻辑清晰的体系。我们希望这个空间像一个儿童装玩具车的箱子,或者一个工具箱,每一件东西都有自己的位置,一切都清晰明了的摆在那里。
与传统的封闭式车库不同,车库顶部设置了通长的高窗和拔风的缝隙,以利用日光照明和自然通风。这也为这个空间赋予了一种与外界环境连通的氛围。白天,站在明亮的车库里,可以看到上方的天空,也可以透过健身空间看到南侧的庭院,车库不再只是一个储存用的盒子,而是成为日常生活可以经过的场地。电动折叠门平常是完全关闭的,在人视高的位置有一排视窗。出警时,门可以完全打开。
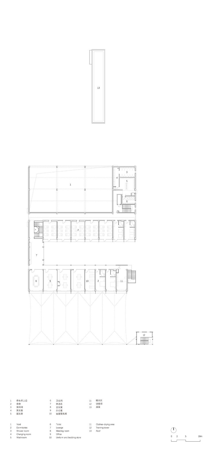
消防员的宿舍被安排在紧邻车库的南侧,朝向庭院,可以通过北侧的走廊快速出警。健身,办公,会议,娱乐也都围绕庭院组织。庭院是这个建筑的另一个中心——等候与日常生活的中心。
通长的天窗放置在几个关键位置,让车库、宿舍走廊、卫生间、楼梯间白天都有自然采光。车库天窗的形式很简单,从室内看去,就是一个朝北开口的洞。天窗和屋顶都是钢结构体系,表面涂漆,放置在清水混凝土框架之上,分别扮演了覆盖与承重的角色。
项目进行到后期时遇到疫情。消防员长时间无法外出活动,大队长希望增加一个下雨天也能打球的篮球场。这个需求并不在最初的设想中,但却很合理。最终,我们在场地南端搭建了一个半室外的篮球场。为了尽量减少结构总量,采用了膜结构,并利用了原来的建筑屋顶和训练塔为结构,辅以几根立柱,完成了这个覆盖。
在方案的推进过程中,车库与出警动线始终是核心,其余功能围绕它逐步展开。不同功能与车库的亲疏远近,人的行动路线,采光方向,通风方式,用餐和健身的感受,都围绕着这个中心逐步生长。这个建筑的确是高度功能化的,但围绕着这个坚硬的内核,我们也希望空间不要过度紧张,让人在重复和等待之中,也能感受到一点放松和舒适。
项目名称:昆山元丰路消防站
项目地点:江苏昆山
占地面积:6996㎡
建筑面积:3216㎡
建筑、室内、景观设计:亘建筑事务所
主持建筑师:范蓓蕾、薛喆、孔锐
方案阶段负责人:张怡羚
深化阶段负责人:薛君
施工阶段负责人:宋崇芳
设计团队: 邱圣禄、王诗羽、陈希、钱佳、余晨埜、庞寅雷、张佳馨、李涵之
结构设计:张准、胡晓劼、蔡研明 / 和作结构建筑研究所
机电设计:梁明、潘珅、万华军、刘剑平 / 上海勘察设计研究院(集团)有限公司
金属立面顾问:来实Lysaght
膜结构顾问:法拉利Serge Ferrari
车库折叠门顾问:诺沃芬Novoferm
合作设计院:苏州中海建筑设计有限公司
业主:昆山市玉山镇人民政府
施工总包:天合建设集团有限公司
膜结构专项施工:上海迈博张拉膜结构工程技术有限公司
车库折叠门施工:三和诺沃芬门业(常熟)有限公司
功能:公共服务设施
设计时间:2020年7月至2023年8月
施工时间:2022年6月至2024年10月
建成时间:2024年10月
结构类型:混凝土结构、钢结构、膜结构
主要材料:混凝土、钢、金属波纹板、PVDF 聚酯基布膜材
摄影:陈颢、亘建筑

大小景观

一树建筑工作室

植田建筑室内设计

栖城设计

筑境设计

普泛建筑工作室

平介设计

余留地

众建筑

末广建筑

大料建筑

东南大学建筑学院

UUA建筑师事务所

米凹工作室

三文建筑 – 何崴工作室

郭谦工作室

星球建筑事务所

成为建筑

成为建筑

大闲建筑设计

一树建筑工作室

观意都市建筑设计

Studio 10

过半儿

研山建筑

席地建筑

禾下建筑社

兰心建筑

房子和诗建筑工作室

繁星建筑工作室

MAT超级建筑事务所

合尘建筑

INUCE事务所

New Office Works

南京邦建都市建筑设计事务所

直向建筑

CWXD建筑事务所

造美室内设计

大观国际设计咨询

灰空间建筑事务所

张·雷设计研究

观筑设计

蹊径设计

未相景观

麟和建筑工作室

Wutopia Lab

北林风景建筑研究中心

中衡设计

大小景观

大小景观

间筑设计