Annn和佺,是我们多年的好友,19年与他们设计并建造了顺义佺宅,至今一家子仍然住在那个舒服慵懒阳光充足的合院家宅中。随着他们陶艺工作的展开,家宅中的工作空间慢慢显得局促。23年在疫情的某一天,Annn和佺,邀请我去京郊顺义一处园区看房,这是工厂片区改造而成的艺术园区,大体上为几座条状的建筑围合而成的。那时候看的一处待出租的空间,工厂的缓坡屋面印象深刻,但整个内部空间通高而幽长。因为空间较小,当时并未承租下来。
直到2025年春,我们再次互相联系,说同一场地的旁边一处更宽敞的空间终于空了出来,希望我们能一起重新思考它的可能性。这处房间南北和西向三面采光,光线充足。上空为大而长的缓坡屋顶。原有屋面主体结构由工字钢梁屋架支撑,彼此之间有次梁(檩条)方钢连接。覆盖屋面的构造材料为带保温材料复合的压型钢板。为了防止侧向不稳定的受力,主钢梁之间用钢杆斜向支撑连接。
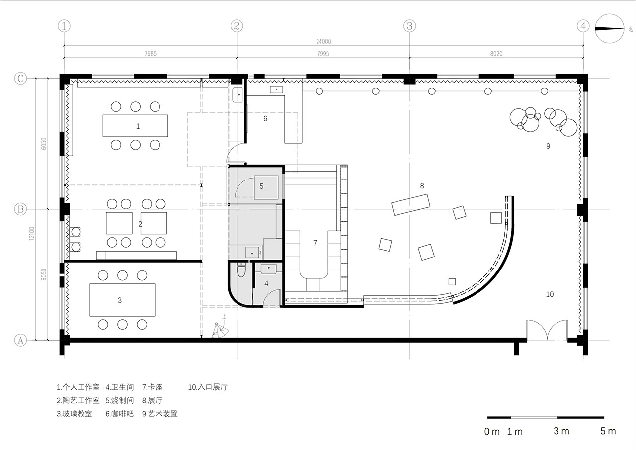
不管怎么说,站在室内中央,12*24米的长宽,屋脊最高处4米高,屋檐最低处3米高的整体空间中,还是感受到了巨大的缓坡屋顶带来的一种奇异的覆盖感。
策略
伊始定位整个项目,工程基于一个明确的前提:总面积330平方米总面积不超过25万元的预算,折合每平方米800元的预算,Annn studio的创始人小岸决定和我们与施工方石总一起推进建造工程。因此,这与其说是室内装修,不如说是一项开放式的,实验性策略的协作搭建——正如Annn studio陶艺空间的实验性陶器一样,我们这需要突破传统装修范畴,也许可以采用基本建材,例如预制镀锌钢、桦木多层板和聚酯产品等等现场技术性组装而成。保留工业厂房的本源,利用三侧充分的自然光线,将之改造为改造为充满光线、绿植与空间层次的住宅兼陶器实验室的复合文化空间。
重要的是,作为熟知陶艺工序及配套运营的小岸来说,对各个功能空间有着清晰的想法,例如玻璃房以及烧窑房等等诸房间需要围合封闭以及特殊的流线。也就是说,除了公共空间,封闭的工艺空间同样成为这个项目的课题之一。
如果仅仅按照功能要求,自然地划分房间,那么业主小岸,精心挑选的一个大空间的良苦用心也许就会丧失。因为势必会因为诸多功能空间的机械排列,呈现出传统的一个个单一模式的房间;但作为想要达到的一个整体的复合的大空间,还需要确保各个房间的功能性,舒适性,这是一个问题。
布局
我们设想,工作区与生活区,公共展区的界限是通过空间中的一组紧凑的功能体块来分割,通过体块中材料的尺度和材质的变化来定义不同空间。这组体块如同“视觉和声学的积木块”。所以将无需良好的采光,更具技术性的烧窑实验间,后勤房,卫生房,客房,咖啡操作台等等紧凑整合在一起。 在90平的工作坊与150平的复合展厅之间形成过渡。与此同时,可以选择“可变隔断”为核心策略:用轻质镀锌钢架支撑桦木多层板滑动墙体灵活分割运营空间。
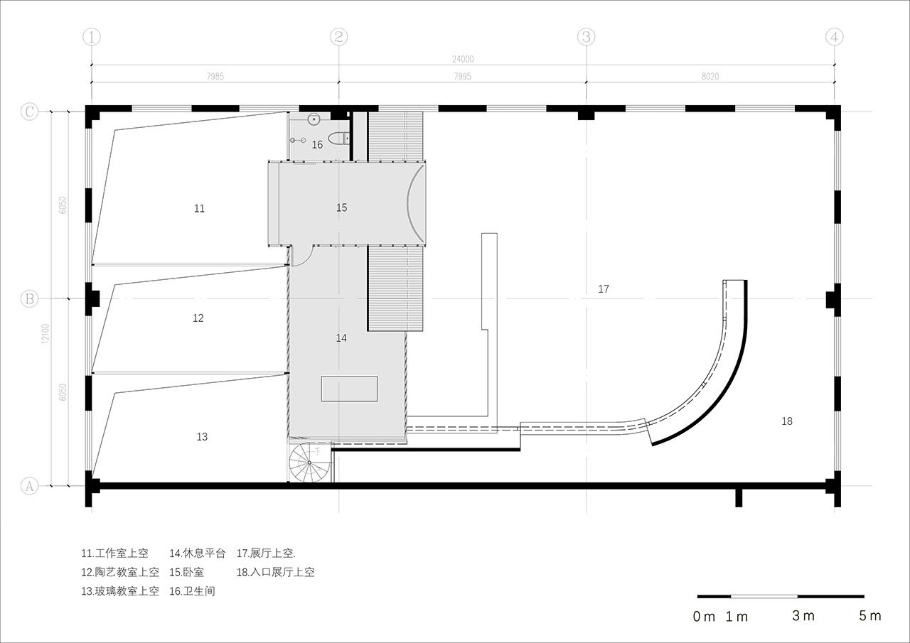
新建体块端部的旋转钢梯以及吧台处的后勤通道实现逻辑清晰的动线布局,例如无需穿过工作区域就可以到达夹层的起居空间,抑或无需穿过教室区域也可以到达个人工作室。这些动线组织,使项目能够适应不断变化的需求,同时始终保持功能区之间清晰但通透的界限。
在平面上,北侧则结合入口,打开呈现一种“广场”的感觉;一道巨大的倾斜弧墙,像张开的手掌一样,承接西向夕阳的光线; 南侧最好的阳光平均分配给小岸的开放工作坊,这块区域包含她自己的工作间以及两间教室。
最终,原有厂房的大屋面将各个空间平缓覆盖。空间的下部因为功能房间被墙体分割为若干部分,人们的视线可以沿着屋顶的缓坡斜线尽可能的延伸,从而感受到原有的“大”。这也许可以创造既彼此独立又彼此连续的空间。屋顶的高侧窗将午后阳光温柔引入,光影在弧墙面与混凝土地面间缓缓游移。而当暮色渐染,灯光次第亮起,弧墙便化作温润的发光体。
建造
一些中等尺度的空间的尺寸过高,为了避免骇人的不舒适的尺度感,上部的空间划分通过螺钉固定聚酯波浪板,下方的空间根据运营可分可合,南部强烈的阳光可以通过这些悬浮的半透材质,均匀地反射与透射。从而创造出像温室一样弥漫且明亮的空间。
为了充分利用空间,地台下的所有空间被一种带轮轴的”抽屉箱体“模块填充,平日这些方钢龙骨多层板饰面制作的”大抽屉“充当收纳功能,将制陶所修的泥胚以及其余工具进行收纳,需要展陈时亦可以拉出来布置于广场之中充当展台。
为了满足灵活多变的展陈需求,我们顺着原有X型抗侧拉杆形式,用40*80的方钢布置了X型吊装展架,不重的展陈招贴和灯具就可以安置在其上面。
吧台采用30的钢格栅作为柜体板,这种既镂空又结实无比的材料既能满足咖啡操作台下方设备的散热需求,又可让视线穿透吧台,保持空间的通透感。钢格栅表面经防滑处理,兼顾实用性与安全。旁边休息区为了最小化的干涉布展空间,沿西墙一侧布置固定座椅,利用工地余料,即兴采取了脚手架钢管与多层板的搭接组合,这种方式同样适合建造一个悬浮的咖啡板桌。
诚然,这个项目探讨了经济与技术,工艺流程,以及商业运营的议题。但实验性的空间,无法为简单问题提供简洁答案,仍然试图最后呈现的空间体验,正如小岸的Annn studio 的所言,这个空间给人的感觉希望是自由的、浪漫的、松弛的、 能取悦自己的、能专注于跟自己独处的 ,浪费时间也好 虚度光阴也罢 ,能让自己真正放松下来的一个空间。
项目名称:Annn studio陶艺空间
项目地点:北京.顺义
建造时间:2025年
用地面积:330平米
建筑面积:330平米
室内设计:KAI建筑工作室 Atelier KAI Architectes
设计团队:谢凯 韩晔 赵辉 刘立超 张仁宇 唐秋宝
道具制作:Annn 李全 Matt 谢凯 石明邵 赵辉 韩晔
灯光咨询:辛格尔(北京)国际照明设计有限公司
造价投资:约25万元
施工建造:金石榴(北京)装饰工程有限公司
摄影:金伟琦

杭州匠研组设计事务所

杭州慢珊瑚设计

将究建筑设计事务所

久舍营造工作室

寻常设计事务所

DPD香港递加设计

壹同创意

自由思考

共向设计

尚辰设计

无象空间

图岸建筑设计

红山设计

GENSLER

美格设计

进化时代设计事务所

新派空间设计

c.dd有限無界

不止设计

合尘建筑

灰空间建筑事务所

堺工作室

几言设计研究室

一二三设计有限公司

尺厘设计工作室

Studio 10

知物设计

奕檐建筑

回应建筑工作室

壹舍室内设计

OAOA Studio

鲸鱼建筑设计事务所

里外工作室

里外工作室

杭州慢珊瑚设计

郦文曦建筑事务所

上海问和答

黑白木设计工作室