屋内是昏暗的,透过暖色的灯光,散发着慵懒的气息,雨水打在黑色的石子路面,带着些许声响,人穿行于廊下,坐望处,雨渐小,远山泛起了雾...
--关于场所的构思
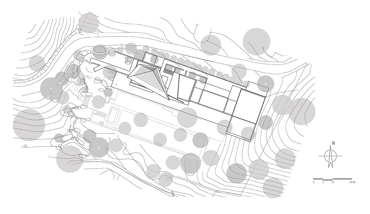
项目地处于浙江安吉县山川乡,漫山的竹林与连绵的山体构成这一区块独特的自然环境。
车子驶出隧道,经由山脚下的一个村庄盘山而上,远山随着海拔的上升开始显现,路过半山腰的一个拐弯处,整片竹林置于眼前,风吹竹林带来沙沙声响,场地的选址正处于这一拐弯处的洼地。
场地北面为一条穿山而过的行车道,南面为一条通往村里养鸡场的小路,下面为一片农田,像是很久没打理,整个处于一种无序混乱的状态,建设用地刚好为两条路中间的一片竹林地。
从人的视角望去,东面,西面与北面均为山坡,南面有较好的景观面,但现有的竹林遮蔽下面农田的同时,也遮蔽了远山的景观,使视野受到局限。好在地块南北高差近7米,利用高差,在高处平整出基础地块,保留下方竹林,构建以远山近林为主体景观的旅宿度假空间,设计也以此作为依据展开。
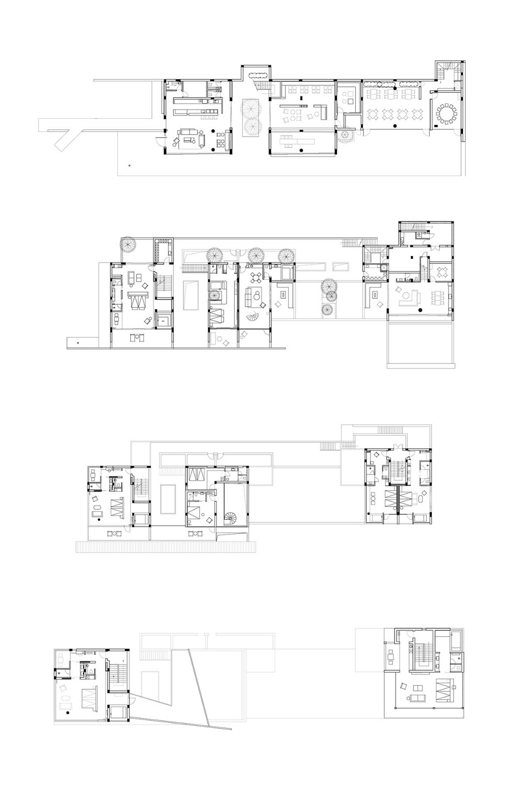
建筑主体为3栋10米*13米的方形体块,利用场地东西近60米长的条件,建筑横向水平拉开,通过连廊,串起各个功能区块,高度上的错层与一个巨大的倾斜屋面,构筑起建筑的基本视觉形象。空间上,由西往东匀质铺开,通过层层递进的方式,延长整个游进路线。
行车道以下3.4米作为建筑基础标高,将接待,书吧,茶室,餐厅这些公共空间置于底层,以半地下室的状态呈现,建筑中庭与南面巨大的开窗消减条形空间带来的冗长感,将景观最大限度的引入建筑内部,3米悬挑长廊作为应对山区多雨气候的同时建立空间内外的模糊性与灵活性,鼓励人们自由穿梭分享自身的感受。
整个建筑在作为度假产品这一功能属性下,以3.2米的单层高度作为基本标高单元,在一个大体量的建筑空间内,保证尺度是宜人的,舒适的。材料上以木材,石材,灰泥涂料等自然质感材质为主,避免材料的过渡使用,深色调的控制也使整个空间内部呈现一种内敛的状态。压低空间内部的明度目的是将视线更聚焦于外部的风景。
外立面深色灰泥的拉毛处理,几何化的建筑形态,明确场所的此时此地,同时强化建筑作为物质这一特性的稳定性。
建筑前方预留近11米宽的戏水池,留建筑与景观一个观望的距离,场所在整片竹林中有了一个向心力,也给民宿提供一个巨大的户外活动场地,抵达这个动词有了具象的画面。
将客房置于上部,三栋建筑各自独立,减少房间因密度而带来的干扰。高度的提升使景观有了更好的呈现。应对度假类空间的特性,我们尽量保证内部空间的简洁性,舒适性,同时避免过渡化设计所带来的视觉干扰,设置每个窗户的朝向,给房间提供最佳的观景视野。
此案是我们尝试将建筑即独立于环境又相互渗透的一次尝试,通过解构建筑的局部,构建一个由物质、氛围、以及使用者空间体验为核心的旅宿度假场所。
项目名称:来野.山川里
项目业主:湖州来野酒店管理有限公司
项目面积:2000sqm
设计公司:偏离设计
设计时间:8/2023---12/2023
施工时间:3/2024---9/2025
主持设计:小岛、戚帅奇
设计团队:付冬冬、李明思、赵英凯、郑梦青
软装设计:潘昕欣、熊良洁
景观设计:又见设计
结构设计:飞鱼设计
建筑工程:信辉建设工程有限公司
装饰工程:浙江拾叙装饰工程有限公司
景观工程:常春藤景观庭院
灯光设计:科尚照明
主要材料:老木板,水洗石,灰泥涂料
项目摄影:壹高(翰墨视觉),滑雪涛(直觉建筑空间摄影)

RooMoo

平衡空间设计

实在建筑

时上建筑空间设计事务所

平介设计

阿穆隆设计工作室

苏州右见建筑装饰设计

十域建筑

蜚声设计

微建筑工作室

优加建筑设计咨询

普林斯曼建筑设计事务所

悦集建筑设计事务所

跳房子建筑工作室

之间建筑

个个世界

尚水希木乡村振兴工作室

为至工作室

泛域设计

無既萬溯设计

无之设计

小隐建筑

个个世界

門觉建筑

寻山建筑

可空建筑设计

成为建筑

介隐建筑

無隐建筑

STUDIO FSJ

即域建筑设计工作室

空崆建筑

哈尔滨众维知行设计工作室

蜚声设计

深建筑事务所

十一空间设计工作室

城外建筑设计

之行建筑事务所

本森空间设计

质感建筑设计工作室

蜚声设计

蜚声设计

gad · Line+ Studio

尚水希木乡村振兴工作室

赤橙建筑空间设计

止建筑

见微知筑工作室

集木德空间设计工作室

回应建筑工作室

門觉建筑

門觉建筑

光影设计

goa大象设计

巢羽建筑设计事务所

万谦集设计

北京对角线设计

柒合設計

Robot 3工作室

蜚声设计

蜚声设计

巢羽建筑设计事务所

O筑设计

超城建筑事务所

山房筑艺术设计