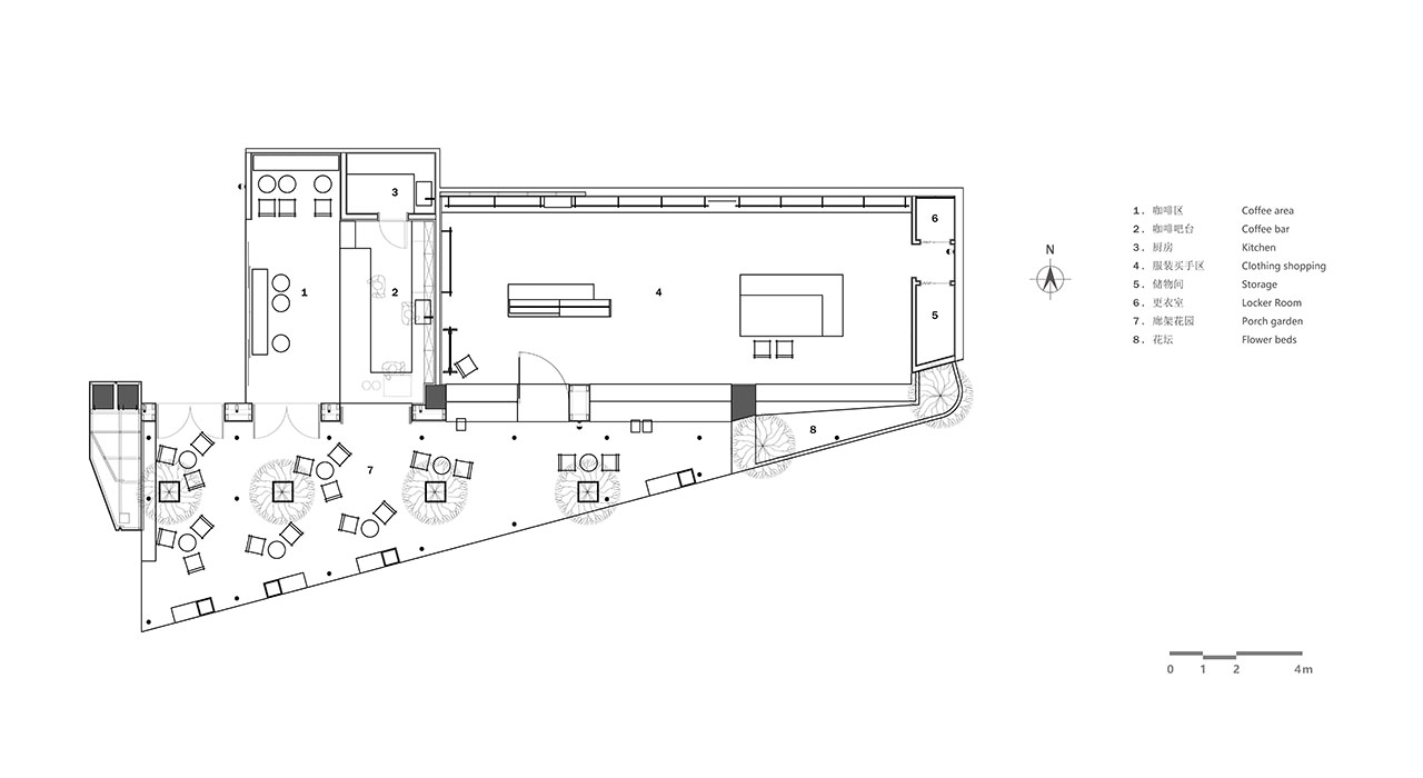
项目位于杭州九意法女装批发市场一层,原来为4个独立的服装展售商铺,设计要将这里改造成集咖啡和服装于一体的集合店。
由场地出发,采用隐退的方式,柔化建筑界面,通过一个花园廊道连接,最终指向一种日常的诗意。
原场地由一道防火墙将空间硬性分割,在不破坏消防防火墙的前提下,我们将整个场地规整为一个不等边三角形与两个长方形,三角形强化场地本身的形态,长方形作为内部使用空间。
在一个现代硬质的场域里,搭建钢构立柱营造与街面的连续感,强化场地的三角关系,植入一个小花园,以共享的方式构建一片风景,为市场里的人群提供一个日常诗意的场所。
室内采用大面积的玻璃引入花园景观,将自然感延续至内部空间。
咖啡区仅有41个平方,尺度上吧台占据了绝对主体位置,设计以敞开的方式,与花园形成相互渗透的关系,在模糊内外界限后,人的互动性得以扩张。
我们希望营造一种真实的现场体验感,而非图式化的表达。
服装区在以功能作为前提条件下,以局部的方式介入,通过材料拼接,构建室内空间。
此案是我们尝试通过设计行为,在当下存量建筑空间里,用小面积的局部改造达到构建一个日常的真实风景的可能性。
项目名称:Co-Tree&candy集合店
项目位置:杭州
项目面积:216sqm
项目业主:合弈(广州)贸易有限公司
设计公司:DPAA偏离设计
设计时间:12/2024---01/2025
施工时间:01/2025---03/2025
主创设计:小岛、戚帅奇
设计团队:付冬冬、李明思
项目施工:浙江拾叙装饰工程有限公司
灯光设计:广州光舍空间照明
主要材料:水磨石,莱姆石,桦木板,不锈钢,剑麻地毯
项目摄影:ACT STUDIO

hcreates罕创室内设计

宇合光年

异规设计

纬图设计

峻佳设计

Wutopia Lab

利落建造

深圳超级平常设计

CATS顾问建筑师小组

小山丘舍设计工作室

厦门千树创新中心空间设计

若凡工作室

KiKi建筑设计事务所

本哲建筑

艾克建筑设计

即时设计研究所

予野设计

白菜设计

一介建筑工作室

启仓设计

文武空间设计顾问

众建筑

锐格建筑与室内设计事务所

archive

善祥建筑设计

云谷空间设计

余留地

余留地

余留地

B.L.U.E.建筑设计事务所

NormalBuild

WAY Studio

广州林墅设计有限公司

艾得设计事务所

Fei Design Studio

三渊空间

外物设计事务所

朗图设计

寻常设计事务所

有物设计顾问

风合睦晨空间设计

乾正设计

精成空间设计

无之设计

厦门开山设计顾问

究境建筑

哲本建筑设计事务所