设计加:顶端设计
平江路松之屿民宿
苏州 收集
 

项目位于苏州平江路丁香巷,是苏州古城最核心的片区。这里西接平江路,东临仓街,原址是八十年代的一栋三层建筑,之前功能是丁香幼儿园。

初见场地,这里已闲置多年,但有着平江路地区少见的大树院落,午后的阳光透过大树洒向墙面和地面,格外的宁静。在房间里透过窗口只看到一整片绿色以及透过树丛的光斑。虽然只隔几百米,但这里和平江路的小桥流水人潮涌动仿佛两个世界。

 

业主想打造的酒店定位很清晰,“城市人文青年旅行酒店”,致力于为当下青年旅人编织与土地深度对话的独特体验。

作为成长于此的苏州本土设计师,我一直认为苏州古城区是世界级的旅游目的地,但远没有像类似的京都这样的酒店民宿产品配置,因此有着巨大的潜力。我们希望这个产品是“城市文化接口”,而非单纯住宿空间,扎根于本土脉络,从历史街区出发,以空间为媒介,去发掘古城很多被喧嚣掩盖的精彩。

设计就是在做“顺势而为”的事情。房子的加固先前已由工程公司完成,因此我们的工作就是建筑外立面改造&室内设计&软装设计&景观设计。我们就围绕绿色、光影、情绪流转、客房需求等具体问题展开工作。

 

绿色基底

几棵大香樟和大水杉是场地的骨架,使绿色弥漫在空间中成为大背景。

翻新后的建筑是古城区的主色调白色,配以白透的阳光板檐口。主庭院是灰白色水洗石,建筑和庭院共同形成一个白色纯净的中间层次。

到了室内,我们使用了原木色海洋板和暖色涂料作为温暖的背景。主色采用了松绿、灰蓝、土黄这三个绿色友好色。局部的家具和软装我们选用了更为热烈饱满的色彩,如克莱因蓝,明黄,粉红等点缀其中。多种色彩在绿色的包裹下显得生动和谐。

这里,最初最动人的绿色,依旧还是主角。

 

树影斑驳

场地的核心气质是迷人的林下光影。我们通过空间组织和材料过渡,让这片美妙的阴翳树影更好的渗透进酒店各个空间。走廊侧有客房挡雨的需求,就在走廊和树林之间设置了一层错落叠合的阳光板构筑,挡雨的同时让光线经过材质过滤幻化出不同的形态。

大厅设置了不同尺度的取景窗,木格栅的透景门窗,半坐取景的条窗,北向打开的折叠窗等等,只为了庭院的树影婆娑可以融进室内共舞。

 

情绪流转

我们希望客人从平江街区过来,进入到酒店里面可以经历一次生动的情绪流转。

外部街区是传统且喧嚣的环境,进入到公区会有一种熟悉的陌生感,修复的木屋顶和雕花窗还是传统苏式,家具和陈设则是鲜明的当代感,一种好奇心被激发。通过大厅的转折进入到庭院,自然的树影纯净的庭院让人瞬间安静下来,想慢慢的在庭院里多呆一会。步入房间,鲜亮的色彩又让人激动起来,激发出想去探索周边的欲望。

 

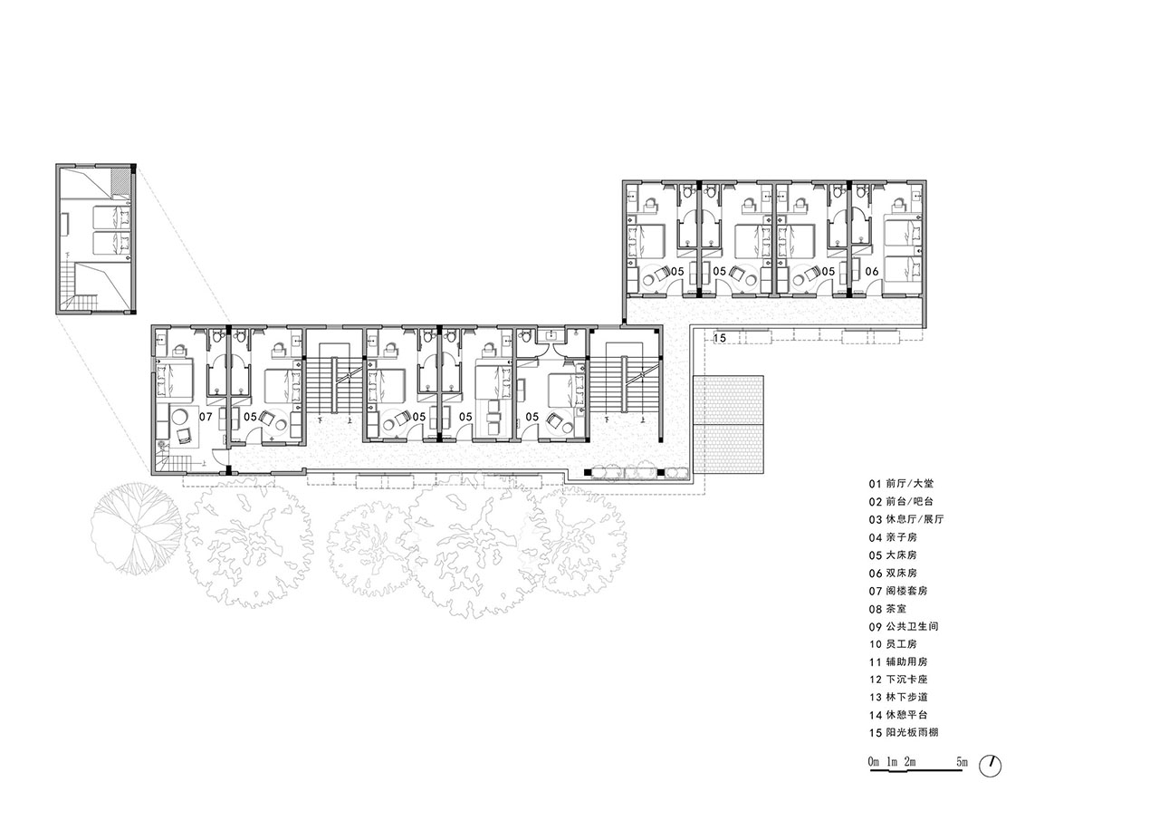
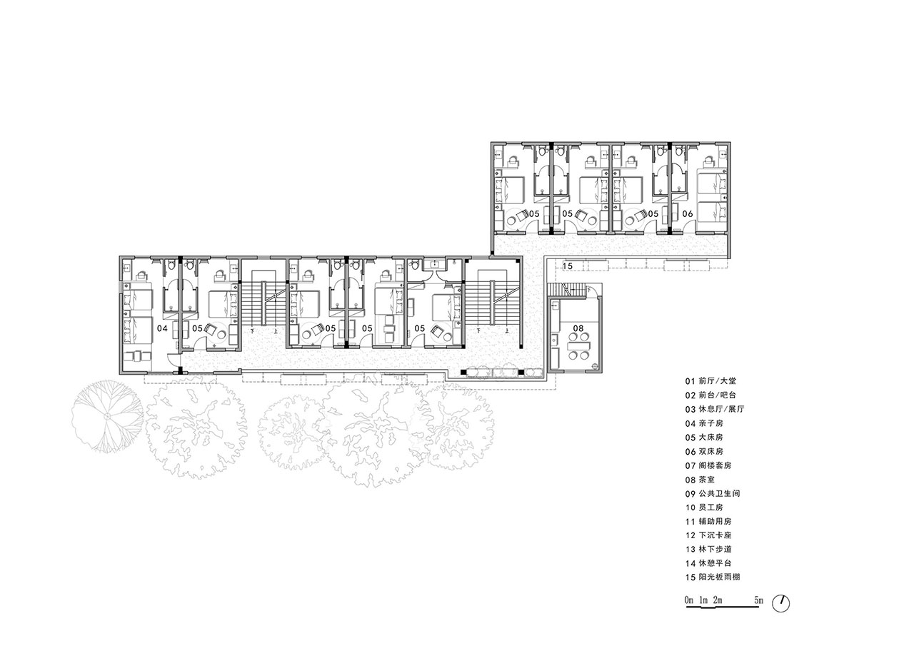
客房需求

建筑原本的格局基本限定了30间客房的大体布置。我们和酒管方仔细研究了酒店定位下客户群体的需求,并根据各个房间位置和空间特点,设置了阁楼套房、庭院房、榻榻米房、宠物友好房等九种房型。在平均二十多平米的客房空间内,也分出了客厅休闲区,睡眠区,三分离卫浴区的布局。房间内因为原有格局采光有限,朝南对着树林,通过海洋板窗套和双层纱帘的组合,勾勒出朦胧光感的透景画框。北向面对居民区则是蜂窝帘的见光不见形,保证隐私又充满光线。家具联合时尚家居品牌,结合空间特质做了一些定制款的家具,很好的活跃了房间氛围。

 

结语

空间只是载体,设计只是手段不是目的,基于现状条件,通过设计手段,最终让空间形成带有精神和情绪波动的化学反应。

在这里,大树的光影、热烈的色彩、多样的肌理,共同组成了一种迷离朦胧的空间气场。步入其间,让人同时产生了inner peace和inspiration的感觉。

苏州古城除了为人熟知的园林老宅,小桥流水,还有大量不同时代背景下的“普通”存量建筑,这些空间也需要在当下找到合适的打开方式,从形式和业态上被唤醒激活,和园林古城共同构成当下城市更新中更为立体的空间序列。

 

项目名称:平江路松之屿民宿

项目类型:建筑、景观、室内设计

建筑面积:1500㎡

业主方:苏州自然造意酒店管理有限公司

设计方:咫间设计

主创设计师:马嘉伟

设计团队:李博 冯筱绮 董江 马明宇 张羿劼

项目地址:江苏省苏州市姑苏区丁香巷41号

完成年份:2025.08

施工方:王刘杨团队

品牌:ziinlife 吱音、Good Monica、雾影自然

摄影版权:张莫非Moffee、松之屿

视频版权:张莫非Moffee

推荐

栖梦·花溪民宿

平介设计

北京彝席之地

介介工作室

觀芷·翠陌民宿酒店

卧野空间设计

浥尘客舍

李益中空间设计

西扬威胡同8号

全壹建筑设计

丽江厚苑

李晓东工作室

璞云悬山

無既萬溯设计

九国·怀庭民宿

衡建筑

“太阳的味道”民宿

壹天建筑工作室

拉萨-阿若康巴

筑瀚景地设计

拾捨·竹里馆

杨永铨建筑设计

海边的礁石书塔-以退为进,面向社区

城外建筑设计

有术民宿酒店

B.L.U.E.建筑设计事务所

北京协作胡同胶囊酒店

B.L.U.E.建筑设计事务所

苫也·未名海民宿

蜚声设计

设计放心选,监督有保障
  • 更好设计

    这里汇聚顶端、前沿的设计团队与项目创意

  • 更多选择

    这里聚合更多国内外、全产业的服务与产品

  • 全面配套

    可需求发布、招标竞赛、咨询管理配套服务

  • 管控保障

    针对服务产品全程监督管控与质量跟踪评价

上设计加网,实现精益营销
  • 高质展示

    入驻企业专站在市场门户高质的展示传播

  • 精准客群

    几千团队、海量设计师、优质需求与客群

  • 全面营销

    企业推广、合作、招聘、企宣等一站到位

  • 顶层发展

    这里汇聚设计产业供需的顶端圈层共发展