《庄子·逍遥游》开篇言:“北冥有鱼,其名为鲲。鲲之大,不知其几千里也;化而为鸟,其名为鹏。”这份跨越千年的逍遥意象,藏着中国人对舒展、灵动、与天地共生的空间哲思。湖州东站的设计,便以这份古卷文意为引,以“水漾丝路、湖倾万锦”为设计核心理念,深度融合湖州“丝绸之府、太湖望郡”的地域文脉与当代交通建筑的功能需求。
湖州地处太湖南岸,苕溪、霅溪双水穿城,形成“水网交织、田桑相依”的江南水乡格局。这种水脉基因在建筑中表现为对曲线轮廓的偏爱,以及对虚实相生、光影变幻的空间追求。站房设计中,屋面连续起伏的曲线轮廓,正是对太湖水波流动韵律的直接转译。屋面最低点的高差控制在4.5米以内,既避免了对天际线的过度干预,又通过平缓的起伏模拟湖岸潮汐的自然形态,使建筑与太湖西岸的水乡地貌形成视觉延续。
湖丝的细腻肌理与苏绣的绚丽纹样,不仅是地域经济的符号,更成为建筑立面“虚实相生、如纱似锦”的灵感来源。落客平台雨棚的门式刚架结构如湖丝的经线般纵向延伸,横向的玻璃肋则似纬线穿梭其中,形成“经纬交织”的织锦肌理。雨棚顶部的半透明玻璃与金属格栅的虚实组合,模拟苏绣“线与面、疏与密”的纹样特征,自然光透过格栅形成的斑驳光影,如同丝绸面料在微风中泛起的光泽,使通行空间成为“湖倾万锦”的沉浸式体验场所。
湖州东站采用门式刚架作为核心结构体系,通过精准控制刚架杆件的角度变化,使屋面呈现连续起伏的曲线轮廓。这种动态造型既模拟了太湖水波的流动韵律,又暗合苏绣纹样的连绵肌理,实现了“水漾丝路”的意象转译。
自然光透过刚架间隙洒入室内,在地面与墙面形成动态的光影变化,如丝绸面料在微风中泛起的光泽。这种设计打破了交通建筑空间的封闭性,将结构美学转化为旅客可感知的场所体验。
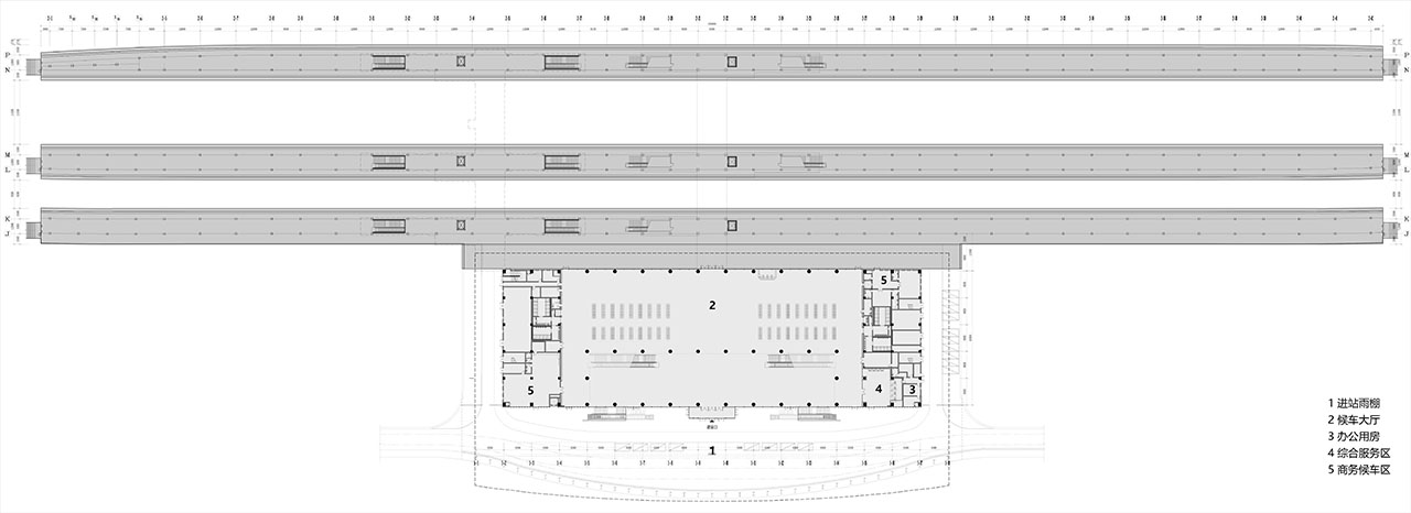
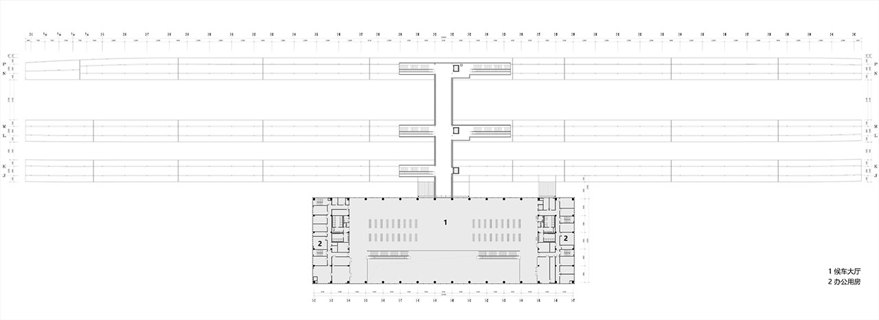
站房采用“坐南朝北”的布局,并针对性提出“南高北低”的剖面设计。南侧抬高的体量不仅对应二层候车区的空间需求,更能最大化引入南向自然光,同时解决大空间排烟问题。剖面设计精准匹配雨棚、入口等不同功能空间的高度需求,避免了传统大空间站房的冗余体积。通过优化空间剖面,候车大厅的净空高度根据人流密度动态调整,既保证了空间的开敞感,又减少了空调负荷,实现了功能需求与低碳目标的平衡。
作为衔接城市与远方的门户,湖州东站站房是承载着文化记忆、自然诗意与当代生活的载体——如鲲鹏栖于苕霅之滨,既扎根地域文脉,又奔赴广阔远方,让每一次启程与抵达,都成为一场穿越古意与今时的文化邂逅。
项目名称:新建湖州至杭州西至杭黄高铁连接线湖州东站站房及相关工程
项目地址:浙江省湖州市吴兴区八里店镇境内
建筑面积:15000㎡
设计方:中南建筑设计院股份有限公司
项目设计:中南建筑设计院股份有限公司
设计团队:李春舫、戴维、张丹、伏果、肖璐瑶、张倩、李超、柏丝、张快、张卫、冯孝宾、韩少楠、马维政、罗蓉、白茹真、陈建群、容浩、朱涛、向睿、余柄宪、王当瑞、王春香、乐红利、金豪、钟燕、王卫、龙翠娟
合作方:
客户:湖杭铁路有限公司
材料:铝板、玻璃、石材
摄影版权:丁烁

goa大象设计

上海秉仁建筑师事务所

XAA建筑事务所

杰恩设计

一合建筑设计研究中心

原作设计工作室

合尘建筑

瑞拓设计

浙江大学建筑设计研究院

哈尔滨天宸建筑设计

天诺国际

山间建筑

三文建筑 – 何崴工作室

现工设计

中国电建集团华东勘测设计研究院