项目位于峨眉金顶下高桥里小镇。咖啡馆的原始场地,西边望金顶,北侧观森林山谷,东南侧是水稻梯田。
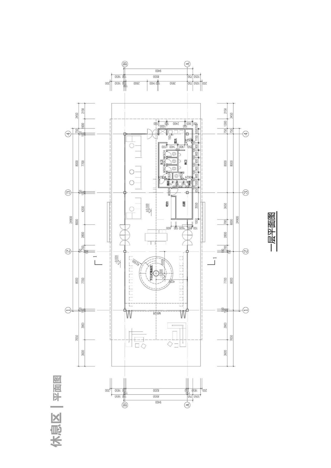
咖啡馆地处丁字路口, 根据场地环境,沿东西向形成长方向布置,建筑入口设置在北侧。
从东侧的路口观赏整栋建筑的展示面,给予观者安宁沉静之感。也是整栋建筑与峨眉金顶合影的最佳角度。
咖啡馆的建筑墙体使用了大面积的玻璃墙,在室内便可将峨眉金顶、森林山谷、稻田的风景尽收眼底。仅东南角使用了局部土黄原色夯土墙,用于设置吧台和员工休息区域,以及保障洗手间的私密性。
依凭场地西高东低的地势而搭建的平台,刚刚好成为整栋建筑的室外观景露台。更是在西侧的露台专门准备一处开阔的室外观景区域,以便游人赏望峨眉金顶。
咖啡馆近旁留有一片与稻田相接的开阔空场地,以提供露营野餐、草地婚礼、美食集市、团体瑜伽&健身、各类户外活动,等等。
在云鬘凝翠的峨眉山脚下,用现代性演绎的古朴川西建筑遥致乡村牧歌的情怀,建筑所具有的肌理与本质被最大化的呈现。在这里,一座座健康且生机盎然的空间足以抚平现代人躁动的心灵。
项目名称:野坡咖啡
项目功能:咖啡厅
项目地址:四川省乐山市峨眉山市高桥镇
项目面积:约280㎡
项目甲方:恒邦双林集团
设计公司:四川尚水希木乡村振兴工作室
设计团队:鲁尚靖、余帆、孙文胜
设计内容:建筑设计
摄影团队:偏方摄影 又与空间—普尤 杨翔(部分照片由甲方及设计方提供)

飞界灵感设计有限公司

简线建筑

静谧设计研究室

安森设计事务所

深点设计PDD

锦莳设计

栋栖设计

壹悦设计

DA STUDIO

不迫工作室

慕达建筑

白菜设计

苏格SG空间设计事务所

山地土壤室内设计

KiKi建筑设计事务所

里外工作室

未见筑设计事务所

川岛雅矢建筑环境设计室

B.L.U.E.建筑设计事务所

木石设计

朴野设计

即时设计研究所

衡建筑

未无设计

都市游牧

锵设计

舍近空间设计事务所

杭州慢珊瑚设计

753studio

梓泉建筑设计

屋已设计

中和营造工作室

观念建筑

借光建筑空间设计

拙讷建筑设计事务所

Studio COLY

另外建筑

另外建筑

另外建筑

red design

斗西设计

本哲建筑

大舟建筑设计事务所

未知设计事务所

文青设计机构

OFFICE AIO

现象设计

大栋建筑

春田空间设计工作室

MOC DESIGN OFFICE

LAE Design

知一设计研究室

未来以北工作室

平衡空间设计

中和营造工作室

所在设计研究社

耕井伫建筑工作室

秩合予美空间设计

B.L.U.E.建筑设计事务所

鳞见设计工作室

浆果创意

如室建筑设计研究事务