这个住宅不仅仅是一个居所,更是一场生活的对话。它拥抱现代关系的复杂性,为共享体验与个人成长提供了理想的空间,是一种「共同又各自独立」的居住宣言。
此度假宅依附淡水河而发展,大片的河面与红树林相互交织,曲面型态使开窗能最大化的接触淡水河景,如何能延续这段建筑与自然之间的对话,成为此案主要设计意图。这个案子中我们很强调『连系』,人与人之间的连系、景观与室内的连系、光影与空间的连系,让看似固定的机能物件能随时间、需求而改变,是我们一直在探索的课题。
不刻意定义、保留弹性、等待时间,让这里成为包容性很强的环境,既能专属于个人,也能容纳群体,一旦为空间留出更多余裕,它便会自然生长与变化。
独立的存在又紧密的关系
家,其实是两个独立灵魂的个体却又紧紧相依为群体的生活场域。在婚姻关系中,某种程度放掉自我,与另一半相携协调找到平衡;在空间中,能够保有自由的独立性却又能维持彼此间的紧密与安心,是我们这次觉得非常有趣的议题。
我们先去业主台中的住家观察,女主人习惯待在吧台空间处理工作,不愿意在封闭的书房而错过与先生互动的时光。「即便不交谈,在各自的角落时依旧能看见彼此处在同一空间」,这对于业主夫妻来说是一种精神上的陪伴。因此,我们定义公共空间的核心为中岛,业主平日习惯在这里工作,也常在此招待宾客。这座凝聚彼此感情的中心,既连结主人与客人,也承载妻子与丈夫的日常相依。
当初在设计这座中岛的形体时,希望它能够很随意地从不同角度被使用,我们不想定义它的面向,因为一但定义了它,也就控制着使用者以固定角度去面向景观。想了许多有别与传统方正的形式,最后这个有机型体的中岛,如同顺应着淡水河地势所长出来的沙洲,依附建筑的曲线量体而生,没有任何的方向性,凭藉不同使用角度去看到不同的风景。
动线其实就像是一把刀,将空间切割成不同的区块。这些区块承载着使用需求,也彼此对应,同时也响应了当代家庭对于「共享但独立」、「连结但不打扰」的生活期待。当我不只是单一的「我」,而同时是伴侣、主人等多重角色的集合时,也能在不同视角间自由转换,用各种方式去观察,去感受空间。
依着这样的期待,我们希望创造出一种更自由、更具有感知层次的生活样态。我们将主要的活动场域沿窗规划,减少隔间所带来的视觉断点,释放中岛、沙发、餐桌与娱乐产品等日常的使用向度,不刻意强调对象的存在,反而透过边界的模糊与轮廓的柔化,使生活行为有更多开展的可能。无方向性的模块沙发,也具体体现我们的意图。它可以是面向中岛客人的交流区,也可以是安静阅读、欣赏夕阳的角落;订制的餐桌设计也呼应中岛的有机曲线,依据玻璃帷幕与对外景观互动的角度所成形,使其与周围环境融合,让人的视线与行动不再受制于边角导引,响应环境需求与空间对话。
释放空间模糊边界
「释放」是本案的设计主轴。我们想象生活于此是流动且弹性,无论是日常行为或视觉画面,皆以一种不受局限的状态被释放。
作为一个完美俯瞰淡水河的度假建筑,空间的延续性是必然的向往,甚至初始业主也大胆提出全室平顶天花以保留空间的延伸感。但就我们而言,这虽然带来水平尺度的延续性,却必须牺牲垂直尺度至2米4,并不是最好的解方。在多次立体仿真尝试各种天花造型后,苍穹式的型态收拢了杂乱的梁位系统,空间尺度也得到垂直性的释放。
许多人对于释放的直觉,便是以敞开作为响应。然而,却忽略了「中介空间」在场域中所提供的情绪价值。例如,被压缩于场域深处的玄关,是外在环境与私密领域的过渡区,对业主而言既不希望一望无际也渴望光线。最终我们将墙体斜切增加受光面,并利用银漆材质的反射光泽引导自然光。刻意不把墙体至顶,利用量体控制视觉,不阻断而达到某种程度的延续。「没有阴影就无法感受到光线」,墙体的暧昧性即是感知光线的媒介,使视觉与光线得以延续,释放行为的边界。
封闭与开放并非二元对立的存在。作为居住空间,无可避免的需有划分场域的必要性,有别于传统墙与房门截断动线的平板与单一,为了保留独处与互动的自由,旋转门、转折的走道变成一个很重要的中介介质,也控制空间公与私的尺度弹性,让看似对立的型态并存于空间,维持视线及机能流动的弹性,亦模糊边界的定义。
不被时间代谢的空间
释放空间,释放行为,我们发现光线也开始在空间中流动了,或许我们也能尝试释放时间。
我们习惯在理解业主之前,透过他们过去的居所整理出其美好的或带有遗憾的生活状态。业主原先居住的房子无疑是一个舒适的家,但在当时流行语言的退潮后,他们也感受到那间房子似乎有所谓的时间性,慢慢对空间开始腻了。这也是我们近几年一直在探索的一个议题,一个无论经过十年、二十年都「不被时间代谢掉的空间」。在设计策略上面,空间中的材料尽量简化、去符号性,减少过多的干预为策略,藉由无时无刻在变化的光线、天空、河流所反射出来的自然光变化,在如沙地般的温润色调中留下轨迹,成为一个不是代谢,而是建筑与地貌、人与人之间不断对话的场域,无论昼夜更迭,四季轮转,住宅能成为一种延续的存在。
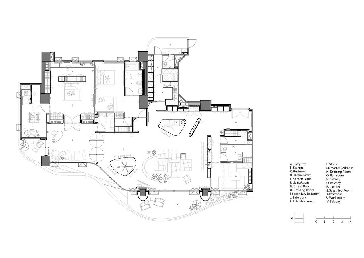
图说
屋内相对私密的收藏空间,我们以业主珍藏钢笔为灵感,汲取联想钢笔本质的花梨木、黄铜及不锈钢延伸为起居环境,幽微光芒与外部开阔纯然色彩形成强烈对比。
项目名称:在河之洲
空间性质:住宅
座落位置:台湾
室内面积:350平方米
空间设计:李智翔、葛祝玮、汤传亚、潘昱沄/水相设计
空间格局:客厅、餐厅、厨房、起居室、主卧室、主卫浴、次卧室、次卫浴、茶室、更衣室、客厕、储藏室、阳台
家具品牌:Boffi, Henge, Baxter, B&B, Gervasoni, Agape, CEA
设计时间:2022.12~2023.06
施工时间:2023.07~2025.05
主要材料:义大利银灰洞石、莱姆石、皇家金檀原石、黑铁烤金属粉银漆、钢烤黑檀木、钢烤花梨木、藤编壁纸、榻榻米、马来漆、盘多摩、金属漆、镜面不锈钢
项目摄影: 揅空间工作室 Studio Millspace

有维建筑设计

衡建筑

尔我空间设计研究室

目心设计研究室

Atelier Zeros

观白设计

之境内建筑设计

of gaaarden

因宜设计

八荒设计

of gaaarden

超空间工作室

边缘计划建筑工作室

巨人设计

ht DESIGN STUDIO

多棵设计

今古凤凰空间策划机构

NDB DESIGN

演意设计

璞珥空间设计

谢秉恒设计

乐享设计

杭州辰佑设计

杭州辰佑设计

上海问和答