设计加:顶端设计
Oneup深圳万象天地店
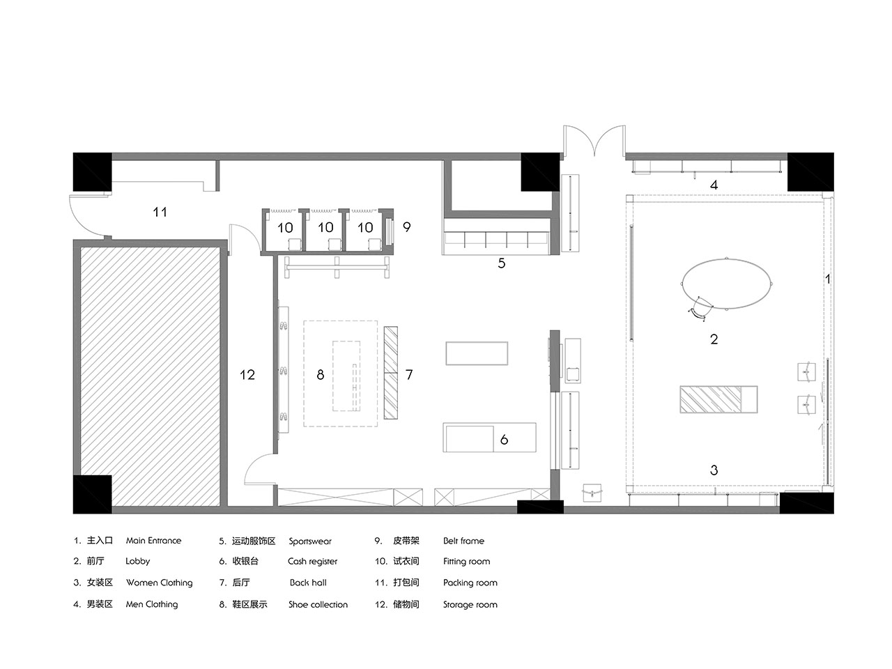
在深圳万象天地的Oneup门店,空间节奏被有意放缓。前厅由四根立柱自然划分,形成介于开放与停留之间的过渡状态。脚下铺设的克莱因蓝色地毯,在提升行走舒适度的同时,于温和基调中留下鲜明的视觉印记。

 

后厅尺度紧凑,色调更为轻盈。空调系统被置于鞋区上方,使相对较低的天花留给以坐姿为主的试穿区域,而收银区则保留开阔层高——不同功能在使用中获得各自合适的空间条件。

 

温润原木从立柱贯穿至家具与陈列架,材质成为空间组织的主线。货架采用不锈钢与层板组合,部分可移动,为服装配饰提供灵活的陈列可能。

 

这里更像一个还原“家”的松弛内核的场所——人可以在试穿、交流或短暂停留之间,找到舒适的节奏。空间保持着克制的尺度,与Oneup所倡导的运动与生活无边界融合,悄然呼应。

 

面积:145㎡

设计:of gaaarden design

摄影:十观 赵宏飞

Oneup深圳万象天地店

地址:圳市南山区沙河立交万象天地L325

电话:18026404139

看地图
收集
设计放心选,监督有保障
  • 更好设计

    这里汇聚顶端、前沿的设计团队与项目创意

  • 更多选择

    这里聚合更多国内外、全产业的服务与产品

  • 全面配套

    可需求发布、招标竞赛、咨询管理配套服务

  • 管控保障

    针对服务产品全程监督管控与质量跟踪评价

上设计加网,实现精益营销
  • 高质展示

    入驻企业专站在市场门户高质的展示传播

  • 精准客群

    几千团队、海量设计师、优质需求与客群

  • 全面营销

    企业推广、合作、招聘、企宣等一站到位

  • 顶层发展

    这里汇聚设计产业供需的顶端圈层共发展