设计加:顶端设计
gaga大吉巷店
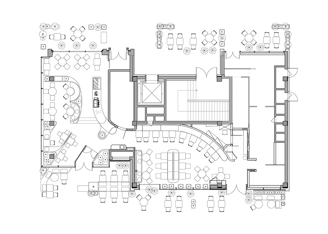
北京中轴线上,胡同屋檐下,gaga新店以“客厅”之姿开门迎友。南、北入口外摆区向街区敞开,半开放庭院模糊内外边界。保留的四合院门头、垂花门与青瓦屋脊静默伫立,朱红点缀间,市井烟火与精致设计悄然共生。

 

室内以曲线划分布局,棱角消隐,动线如漫游。橘红色夯土漆弧形墙面如暖色怀抱,西侧地面抬升,错落如院落高差。天花弧线引导视线,与吧台、卡座贯穿呼应。自然光渗入,绿植穿插,桌椅随形铺陈——可独自闲坐,也可聚友慢食。金属装置轻巧点缀,色彩对比添几分俏皮。

 

传统构件与现代肌理叠合,空间如胡同里长出的新客厅。亲切、松弛,藏着京城的烟火与温度。

 

面积:室内268㎡,外摆133㎡

设计:odd设计事务所

摄影:gaga

gaga大吉巷店

地址:北京市骡马市大街20号院中海大吉巷FS03

电话:010-68960709

看地图
收集
设计放心选,监督有保障
  • 更好设计

    这里汇聚顶端、前沿的设计团队与项目创意

  • 更多选择

    这里聚合更多国内外、全产业的服务与产品

  • 全面配套

    可需求发布、招标竞赛、咨询管理配套服务

  • 管控保障

    针对服务产品全程监督管控与质量跟踪评价

上设计加网,实现精益营销
  • 高质展示

    入驻企业专站在市场门户高质的展示传播

  • 精准客群

    几千团队、海量设计师、优质需求与客群

  • 全面营销

    企业推广、合作、招聘、企宣等一站到位

  • 顶层发展

    这里汇聚设计产业供需的顶端圈层共发展