设计加:顶端设计
文川一舍民宿酒店

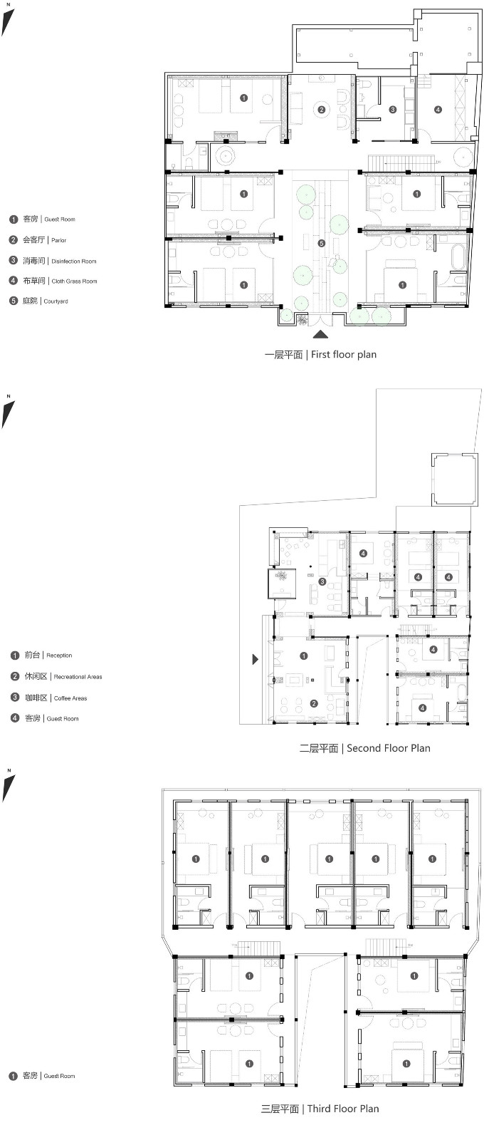
福州仓山区烟台山,一座清末民国时期的百年建筑,静立于历史保护区内。文川一舍保留了老宅的每一处砖瓦梁柱,黛瓦青砖、朱门绮户,岁月痕迹镌刻其间。

 

跨入酒店,喧嚣悄然褪去。登记前台空间安静,木质气息萦绕,视线从纷杂归于聚焦,脚步不自觉放缓。穿过斑驳钢板移门,外界彻底隔绝——客房围绕庭院铺展,静谧扑面而来。

 

室内以木饰面为主调,天然纹理与温暖触感营造出森林深处的深沉呼吸。古木家具散落其间,东方美学不着痕迹地流淌。在这里,身体被轻柔包裹,心灵找到安放之处。

 

暂忘尘嚣,寻一隅宁静。文川一舍,让住客在百年老宅里,做一场恬淡的梦。

 

面积:1000㎡

设计:己盒概念

摄影:邹训楷

文川一舍民宿酒店

地址:福州市仓前街道忠烈路16号

电话:18659153800

看地图
收集
设计放心选,监督有保障
  • 更好设计

    这里汇聚顶端、前沿的设计团队与项目创意

  • 更多选择

    这里聚合更多国内外、全产业的服务与产品

  • 全面配套

    可需求发布、招标竞赛、咨询管理配套服务

  • 管控保障

    针对服务产品全程监督管控与质量跟踪评价

上设计加网,实现精益营销
  • 高质展示

    入驻企业专站在市场门户高质的展示传播

  • 精准客群

    几千团队、海量设计师、优质需求与客群

  • 全面营销

    企业推广、合作、招聘、企宣等一站到位

  • 顶层发展

    这里汇聚设计产业供需的顶端圈层共发展